ТПК-125 Восстановление
- rebire
- Мастер
- Сообщения: 219
- Зарегистрирован: 25 сен 2015, 00:43
- Репутация: 25
- Настоящее имя: Дмитрий
- Откуда: ульяновск
- Контактная информация:
ТПК-125 Восстановление
Здравствуйте,начну с начала,есть станок тпк125 без родного чпу встал вопрос об восстановлении станка было закуплено:
1).Асинхронный двигатель 3квт 3тыс.об.
2)Частотник АВВ на 3квт
3)Шаговые двигатели SY57STH56-2804 12.6 кгсм nema 23" 2шт.
4)Драйвер 4A TB6600 2шт
5)цанговый пневмо патрон(есть чертежи) будет разжимать и эажимать в ручную.
6)Контроллер ссылка http://www.ebay.com/itm/CNC-5-Axis-Brea ... 1751383909 но он не подошел т.к. нет выходов управления частотником и нельзя подключить энкодер и не понятно как к нему подключить рев головку,вобщем это не контроллер а незнай что.
Сейчас выбор пал на контроллер есть подключение энкодера для нарезания резьбы и три каких то реле,вопрос в том как эти реле работают и от каких сигналов?
Револьверная головка ТПК-125 оснащена рд9 и пневмоклином от проворота инструмента вопрос в том как связать рев головку и контроллер?
МОИ МЫСЛИ
Для рев головки можно сделать отдельно релейный блок последовательной смены инструмента,но для реализации этого нужен какой то начальный импульс,а после смены инструмента нужно как то сказать старт программе,для этого я думаю можно использовать концевик на пневмоклине,
Теоретически как то что то немного понятно но как связать программу контроллер и все остальное на деле темный лес,кто понимает подскажите пожалуйста.
ссылка на контроллер http://www.ebay.com/itm/Engraving-Machi ... 1317184638
1).Асинхронный двигатель 3квт 3тыс.об.
2)Частотник АВВ на 3квт
3)Шаговые двигатели SY57STH56-2804 12.6 кгсм nema 23" 2шт.
4)Драйвер 4A TB6600 2шт
5)цанговый пневмо патрон(есть чертежи) будет разжимать и эажимать в ручную.
6)Контроллер ссылка http://www.ebay.com/itm/CNC-5-Axis-Brea ... 1751383909 но он не подошел т.к. нет выходов управления частотником и нельзя подключить энкодер и не понятно как к нему подключить рев головку,вобщем это не контроллер а незнай что.
Сейчас выбор пал на контроллер есть подключение энкодера для нарезания резьбы и три каких то реле,вопрос в том как эти реле работают и от каких сигналов?
Револьверная головка ТПК-125 оснащена рд9 и пневмоклином от проворота инструмента вопрос в том как связать рев головку и контроллер?
МОИ МЫСЛИ
Для рев головки можно сделать отдельно релейный блок последовательной смены инструмента,но для реализации этого нужен какой то начальный импульс,а после смены инструмента нужно как то сказать старт программе,для этого я думаю можно использовать концевик на пневмоклине,
Теоретически как то что то немного понятно но как связать программу контроллер и все остальное на деле темный лес,кто понимает подскажите пожалуйста.
ссылка на контроллер http://www.ebay.com/itm/Engraving-Machi ... 1317184638
Последний раз редактировалось rebire 07 ноя 2015, 23:40, всего редактировалось 1 раз.
_____________________
Собрали и смело включайте, лишнее выгорит!
Собрали и смело включайте, лишнее выгорит!
-
aftaev
- Зачётный участник

- Сообщения: 34042
- Зарегистрирован: 04 апр 2010, 19:22
- Репутация: 6194
- Откуда: Казахстан.
- Контактная информация:
Re: ТПК-125 Помогите разобраться
Это плата "опторазвязки" Interface-Breakout-Board нужна чтобы защитить LPT порт ежели что то где то пробьетrebire писал(а):вобщем это не контроллер а незнай что.
Частотник вкл/выкл или по ШИМ подключить можно, для чего подключать энкодер не понятно, револьверку можно подключить но нужны доп. реле.rebire писал(а):нет выходов управления частотником и нельзя подключить энкодер и не понятно как к нему подключить рев головку
Практически такая же плата как и первя, но с красЯвыми картинками.rebire писал(а):Сейчас выбор пал на контроллер
Если будет использоваться Mach3. то ему не нужен энкодер, а нужна метка на шпинделеrebire писал(а):есть подключение энкодера для нарезания резьбы
Если будет использоваться mach3 то пишется макрос на смену инструмента (управление револьверкой)rebire писал(а):Теоретически как то что то немного понятно но как связать программу контроллер и все остальное на деле темный лес,кто понимает подскажите пожалуйста.
Контроллер что то контролирует, а эта плата тупо пропускает сигналы, потому не есть контроллер и потому она называется Interface-Breakout-Boardrebire писал(а):ссылка на контроллер http://www.ebay.com/itm/Engraving-Machi ... 1317184638
Дилетанту сложные вещи кажутся очень простыми, и только профессионал понимает насколько сложна самая простая вещь
Кто хочет - ищет возможности, кто не хочет - ищет оправдание.
Найди работу по душе и тебе не придется работать.
Кто хочет - ищет возможности, кто не хочет - ищет оправдание.
Найди работу по душе и тебе не придется работать.
-
aftaev
- Зачётный участник

- Сообщения: 34042
- Зарегистрирован: 04 апр 2010, 19:22
- Репутация: 6194
- Откуда: Казахстан.
- Контактная информация:
Re: ТПК-125 Помогите разобраться
Мож сразу выброситьrebire писал(а):4)Драйвер 4A TB6600 2шт
Дилетанту сложные вещи кажутся очень простыми, и только профессионал понимает насколько сложна самая простая вещь
Кто хочет - ищет возможности, кто не хочет - ищет оправдание.
Найди работу по душе и тебе не придется работать.
Кто хочет - ищет возможности, кто не хочет - ищет оправдание.
Найди работу по душе и тебе не придется работать.
- rebire
- Мастер
- Сообщения: 219
- Зарегистрирован: 25 сен 2015, 00:43
- Репутация: 25
- Настоящее имя: Дмитрий
- Откуда: ульяновск
- Контактная информация:
Re: ТПК-125 Помогите разобраться
Спасибо за ответaftaev писал(а):Мож сразу выброситьrebire писал(а):4)Драйвер 4A TB6600 2шт
А что с ними не так?
А какой вы посоветуйте контроллер?
И что лучше использовать для управления станком mach или linuxcnc и обычный lpt порт?
С шаговыми двигателями говорят будет медленный станок сервопривода лучше и можно их подключить к контроллеру?
Энкодер разве нужен не для того чтобы нарезать резьбу и что это за метка на шпинделе?
Не могли бы вы написать программу и макрос за вознаграждение?и вообще создать какую нибудь логику работы.
_____________________
Собрали и смело включайте, лишнее выгорит!
Собрали и смело включайте, лишнее выгорит!
-
aftaev
- Зачётный участник

- Сообщения: 34042
- Зарегистрирован: 04 апр 2010, 19:22
- Репутация: 6194
- Откуда: Казахстан.
- Контактная информация:
Re: ТПК-125 Помогите разобраться
Звезды не так совпали(а это будет часто) он сгоритrebire писал(а):А что с ними не так?
linuxcnc по лучшее наверно будет для токарки, можно начать с LPT порта. Для выбора ЧПУ системы нужно знать задачи которые будут выполняться на станкеrebire писал(а):И что лучше использовать для управления станком mach или linuxcnc и обычный lpt порт?
Сервы бывают разные, некоторые можно. Если понимают step/dir то можно подключить к LPT. Если понимают аналоговое задание +-10в то нужны будут платы Mesa. Если сервы будут сетевые, управляются по какому нибудь CanOpen то не прикрутить без большого секса.rebire писал(а):С шаговыми двигателями говорят будет медленный станок сервопривода лучше и можно их подключить к контроллеру?
Энкодер нужен для определения положения шпинделя и применяется это для нарезание резьб, и подачи на оборот. Метка ддиск с одним отверстием и оптопара.rebire писал(а):Энкодер разве нужен не для того чтобы нарезать резьбу и что это за метка на шпинделе?
Для этого нужно экспериментировать, и нужна така револьверка. Кто то на форуме для ТПК что то писал, поискай.rebire писал(а):Не могли бы вы написать программу и макрос за вознаграждение?и вообще создать какую нибудь логику работы.
Дилетанту сложные вещи кажутся очень простыми, и только профессионал понимает насколько сложна самая простая вещь
Кто хочет - ищет возможности, кто не хочет - ищет оправдание.
Найди работу по душе и тебе не придется работать.
Кто хочет - ищет возможности, кто не хочет - ищет оправдание.
Найди работу по душе и тебе не придется работать.
- rebire
- Мастер
- Сообщения: 219
- Зарегистрирован: 25 сен 2015, 00:43
- Репутация: 25
- Настоящее имя: Дмитрий
- Откуда: ульяновск
- Контактная информация:
Re: ТПК-125 Помогите разобраться
linuxcnc по лучшее наверно будет для токарки, можно начать с LPT порта. Для выбора ЧПУ системы нужно знать задачи которые будут выполняться на станке
А вы не могли бы рассказать как устроено управление на linuxcnc и что куда подключается и какие компоненты нужны?
Если вы поможет я вечером выложу чертеж детали которую надо будет делать что бы было более понятней.
А вы не могли бы рассказать как устроено управление на linuxcnc и что куда подключается и какие компоненты нужны?
Если вы поможет я вечером выложу чертеж детали которую надо будет делать что бы было более понятней.
_____________________
Собрали и смело включайте, лишнее выгорит!
Собрали и смело включайте, лишнее выгорит!
- raddd
- Почётный участник

- Сообщения: 1564
- Зарегистрирован: 10 фев 2015, 08:50
- Репутация: 540
- Настоящее имя: Alexey Rodionov
- Откуда: Беларусь Минский р-н
- Контактная информация:
Re: ТПК-125 Помогите разобраться
Недумаю что вы найдете готовое решение...
Установите linuxcnc на комп сконфигурируйте под токарник (как, есть все на форуме в вики) когда поймете что к чему, тогда вопросы ваши будут более компетентны... а пока вам сложно что то ответить...
Установите linuxcnc на комп сконфигурируйте под токарник (как, есть все на форуме в вики) когда поймете что к чему, тогда вопросы ваши будут более компетентны... а пока вам сложно что то ответить...
||||||||||||
||||||||||||
||||||||||||
- rebire
- Мастер
- Сообщения: 219
- Зарегистрирован: 25 сен 2015, 00:43
- Репутация: 25
- Настоящее имя: Дмитрий
- Откуда: ульяновск
- Контактная информация:
Re: ТПК-125 Помогите разобраться
Вечером попробую установить и попробывать.raddd писал(а):Недумаю что вы найдете готовое решение...
Установите linuxcnc на комп сконфигурируйте под токарник (как, есть все на форуме в вики) когда поймете что к чему, тогда вопросы ваши будут более компетентны... а пока вам сложно что то ответить...
_____________________
Собрали и смело включайте, лишнее выгорит!
Собрали и смело включайте, лишнее выгорит!
- aegis
- Мастер
- Сообщения: 3171
- Зарегистрирован: 22 мар 2012, 06:59
- Репутация: 1810
- Настоящее имя: Михайло
- Откуда: Україна, Конотоп=>Запоріжжя=>Харьків
Re: ТПК-125 Помогите разобраться
у меня под линуксом токарник. правда через лпт все работает. на следующий думаю мессы брать, но пока не определился с набором. надо 2 аналоговые оси, шпиндель можно по модбасу можно по аналогу, но думаю лучше модбас. концевики с хомами, енкодер на шпиндель. линейный магазин резцов будет, поэтому как таковые пины на смену инструмента не сильно и нужны.
ну вроде как и все что надо подключать. 5и25+7и77 вроде как избыточна для такой связки
ну вроде как и все что надо подключать. 5и25+7и77 вроде как избыточна для такой связки
нікому нічого не нав'язую.
- rebire
- Мастер
- Сообщения: 219
- Зарегистрирован: 25 сен 2015, 00:43
- Репутация: 25
- Настоящее имя: Дмитрий
- Откуда: ульяновск
- Контактная информация:
Re: ТПК-125 Помогите разобраться
Вот накидал схему управления рев головкой
можно это привязать к linuxcnc?
если что то где то не понятно объясню,или не так поправьте.
если что то где то не понятно объясню,или не так поправьте.
_____________________
Собрали и смело включайте, лишнее выгорит!
Собрали и смело включайте, лишнее выгорит!
-
aftaev
- Зачётный участник

- Сообщения: 34042
- Зарегистрирован: 04 апр 2010, 19:22
- Репутация: 6194
- Откуда: Казахстан.
- Контактная информация:
Re: ТПК-125 Помогите разобраться
rebire, писывать нужно алгаритм, а непонятную схему.
У меня револьверка работает так: включается двиг и начинается вращатся барабан, как только срабатывает нужный геркон инструмента происходит реверс вращения и голова затягивается.
Написано все на Ладере в Lcnc
У меня револьверка работает так: включается двиг и начинается вращатся барабан, как только срабатывает нужный геркон инструмента происходит реверс вращения и голова затягивается.
Написано все на Ладере в Lcnc
Дилетанту сложные вещи кажутся очень простыми, и только профессионал понимает насколько сложна самая простая вещь
Кто хочет - ищет возможности, кто не хочет - ищет оправдание.
Найди работу по душе и тебе не придется работать.
Кто хочет - ищет возможности, кто не хочет - ищет оправдание.
Найди работу по душе и тебе не придется работать.
- rebire
- Мастер
- Сообщения: 219
- Зарегистрирован: 25 сен 2015, 00:43
- Репутация: 25
- Настоящее имя: Дмитрий
- Откуда: ульяновск
- Контактная информация:
Re: ТПК-125 Помогите разобраться
[quote="aftaev"]rebire, писывать нужно алгаритм, а непонятную схему.
алгоритм такой:
При подаче сигнала на реле 1 срабатывают контакты 1.1 и 1.2 и 1.3.
Контакт 1.1 и концевик выбора инструмента контакт 1-2 обеспечивают фиксацию реле Р1
Контакт 1.2 обеспечивает срабатывание пневмозолотника и сдвигает клин вниз замыкая контакт 7-8 что обеспечивает срабатывание реле Р3(подает напряжение на рд9)
Контакт 1.3 обеспечивает реверс (при фиксированом Р1 вращается по часовой стрелке)
Идет вращение рев головки до тех пор пока не разомкнутся контакты концевика 1-2,после размыкания, реле Р1 контакты 1.1 1.2 и 1.3 размыкаются,(контакт 1.3 расфиксирован вращение против часовой стрелки),но реле Р2 за счет резистора и конденсатора продолжает быть зафиксирован некоторое время обеспечивая удержание клина,а клин за счет контактов 7-8 удерживает реле Р3 обеспечивая питание РД9,но контакт 1.3 уже не зафиксирован тем самым происходит реверс,после происходит разряд конденсатора и размыкание реле Р2 происходит заклиневание головки размыкание контактов 7-8,а контакты 5-6 замыкаются сообщая что смена инструмента произошла.
Ну как то так.
Спасибо.
алгоритм такой:
При подаче сигнала на реле 1 срабатывают контакты 1.1 и 1.2 и 1.3.
Контакт 1.1 и концевик выбора инструмента контакт 1-2 обеспечивают фиксацию реле Р1
Контакт 1.2 обеспечивает срабатывание пневмозолотника и сдвигает клин вниз замыкая контакт 7-8 что обеспечивает срабатывание реле Р3(подает напряжение на рд9)
Контакт 1.3 обеспечивает реверс (при фиксированом Р1 вращается по часовой стрелке)
Идет вращение рев головки до тех пор пока не разомкнутся контакты концевика 1-2,после размыкания, реле Р1 контакты 1.1 1.2 и 1.3 размыкаются,(контакт 1.3 расфиксирован вращение против часовой стрелки),но реле Р2 за счет резистора и конденсатора продолжает быть зафиксирован некоторое время обеспечивая удержание клина,а клин за счет контактов 7-8 удерживает реле Р3 обеспечивая питание РД9,но контакт 1.3 уже не зафиксирован тем самым происходит реверс,после происходит разряд конденсатора и размыкание реле Р2 происходит заклиневание головки размыкание контактов 7-8,а контакты 5-6 замыкаются сообщая что смена инструмента произошла.
Ну как то так.
Спасибо.
_____________________
Собрали и смело включайте, лишнее выгорит!
Собрали и смело включайте, лишнее выгорит!
- rebire
- Мастер
- Сообщения: 219
- Зарегистрирован: 25 сен 2015, 00:43
- Репутация: 25
- Настоящее имя: Дмитрий
- Откуда: ульяновск
- Контактная информация:
Re: ТПК-125 Помогите разобраться
вот чертеж детали что подскажите?aftaev писал(а):linuxcnc по лучшее наверно будет для токарки, можно начать с LPT порта. Для выбора ЧПУ системы нужно знать задачи которые будут выполняться на станке
Хочу реализовать нарезание внутренней резьбы M14Х1.5 резцом,реально это?
_____________________
Собрали и смело включайте, лишнее выгорит!
Собрали и смело включайте, лишнее выгорит!
- aegis
- Мастер
- Сообщения: 3171
- Зарегистрирован: 22 мар 2012, 06:59
- Репутация: 1810
- Настоящее имя: Михайло
- Откуда: Україна, Конотоп=>Запоріжжя=>Харьків
Re: ТПК-125 Помогите разобраться
rebire, нарежет резцом. я на станке попроще ито режу когда надо
нікому нічого не нав'язую.
-
aftaev
- Зачётный участник

- Сообщения: 34042
- Зарегистрирован: 04 апр 2010, 19:22
- Репутация: 6194
- Откуда: Казахстан.
- Контактная информация:
Re: ТПК-125 Помогите разобраться
Если массовое нужно, то револьверу лучше не ставить, а поставить резцы в ряд.rebire писал(а):что подскажите?
Лижбы резец залезrebire писал(а):Хочу реализовать нарезание внутренней резьбы M14Х1.5 резцом,реально это?
Дилетанту сложные вещи кажутся очень простыми, и только профессионал понимает насколько сложна самая простая вещь
Кто хочет - ищет возможности, кто не хочет - ищет оправдание.
Найди работу по душе и тебе не придется работать.
Кто хочет - ищет возможности, кто не хочет - ищет оправдание.
Найди работу по душе и тебе не придется работать.
- rebire
- Мастер
- Сообщения: 219
- Зарегистрирован: 25 сен 2015, 00:43
- Репутация: 25
- Настоящее имя: Дмитрий
- Откуда: ульяновск
- Контактная информация:
Re: ТПК-125 Помогите разобраться
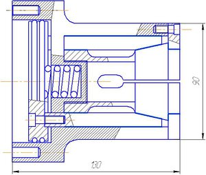
ДА массово,резцы в ряд интересная идея,но как разместить 5..6 инструментов чтобы они друг другу не мешали и при сверлении рядом стоящий инструмент не уперся в патрон.aftaev писал(а):Если массовое нужно, то револьверу лучше не ставить, а поставить резцы в ряд.
P.S.Наибольшее перемещение суппорта, мм:
- по координате Z 180
- по координате Х 110
патрон у меня вот такой (если интересно могу поделиться чертежами)
и еще почитав сегодня про линукс немнго понял то что при помощи лпт порта можно обойтись без реле подключив напрямую к компьютеру,и управлять не через реле,а через программу.Но без двух реле питание РД-09 и клапан пневмозолтника(напряжение управления 110в) все равно не обойтись,а вот логика управления полностью изменится.И еще управление частотником как происходит?
Я прав?
_____________________
Собрали и смело включайте, лишнее выгорит!
Собрали и смело включайте, лишнее выгорит!
- PKM
- Почётный участник

- Сообщения: 4263
- Зарегистрирован: 31 мар 2011, 18:11
- Репутация: 705
- Настоящее имя: Андрей
- Откуда: Украина
- Контактная информация:
Re: ТПК-125 Помогите разобраться
Да. Еще и цену подняли с 239 до 279... но все равно недавно взял, теперь выбираю, куда приткнуть.aegis писал(а):5и25+7и77 вроде как избыточна для такой связки
Смотря какой частотник. Либо по аналогу (напряжением на входе), либо через RS-485. Еще можно от ПК просто включать-выключать, а регулировать ручкой на частотникеrebire писал(а):управление частотником как происходит
- aegis
- Мастер
- Сообщения: 3171
- Зарегистрирован: 22 мар 2012, 06:59
- Репутация: 1810
- Настоящее имя: Михайло
- Откуда: Україна, Конотоп=>Запоріжжя=>Харьків
Re: ТПК-125 Помогите разобраться
менее навороченную связку под мои задачи какую посоветуешь?PKM писал(а):Да. Еще и цену подняли с 239 до 279
нікому нічого не нав'язую.
- Nick
- Мастер
- Сообщения: 22776
- Зарегистрирован: 23 ноя 2009, 16:45
- Репутация: 1735
- Заслуга: Developer
- Откуда: Gatchina, Saint-Petersburg distr., Russia
- Контактная информация:
Re: ТПК-125 Помогите разобраться
Конечно интересно!rebire писал(а):(если интересно могу поделиться чертежами)
А фото готового есть?
Пружины какие стоят? И чем тянешь, пневматикой?
Дешевле врядли что-то будет.aegis писал(а):ну вроде как и все что надо подключать. 5и25+7и77 вроде как избыточна для такой связки
Разве что самому городить преобразования pwm в аналог и развязку самому делать. Тогда хватит только 5i25.
- PKM
- Почётный участник

- Сообщения: 4263
- Зарегистрирован: 31 мар 2011, 18:11
- Репутация: 705
- Настоящее имя: Андрей
- Откуда: Украина
- Контактная информация:
Re: ТПК-125 Помогите разобраться
Если бы сделали такую плату на 4 канала за 2/3 цены - сам бы с удовольствием ее покупал... или на 3 канала за полценыaegis писал(а):менее навороченную связку под мои задачи какую посоветуешь?
Но пара аналоговых преобразователей навряд ли потянет 1/3 стоимости... там еще остального куча - IO, обвязка, питание... так что была бы такая плата дешевле всего на 10-15 дол.
Так что остается yapsc если подешевле надо
