На чем и где сделать такое кольцо
-
Rockrider
- Новичок
- Сообщения: 13
- Зарегистрирован: 26 фев 2016, 21:25
- Репутация: 0
- Контактная информация:
На чем и где сделать такое кольцо
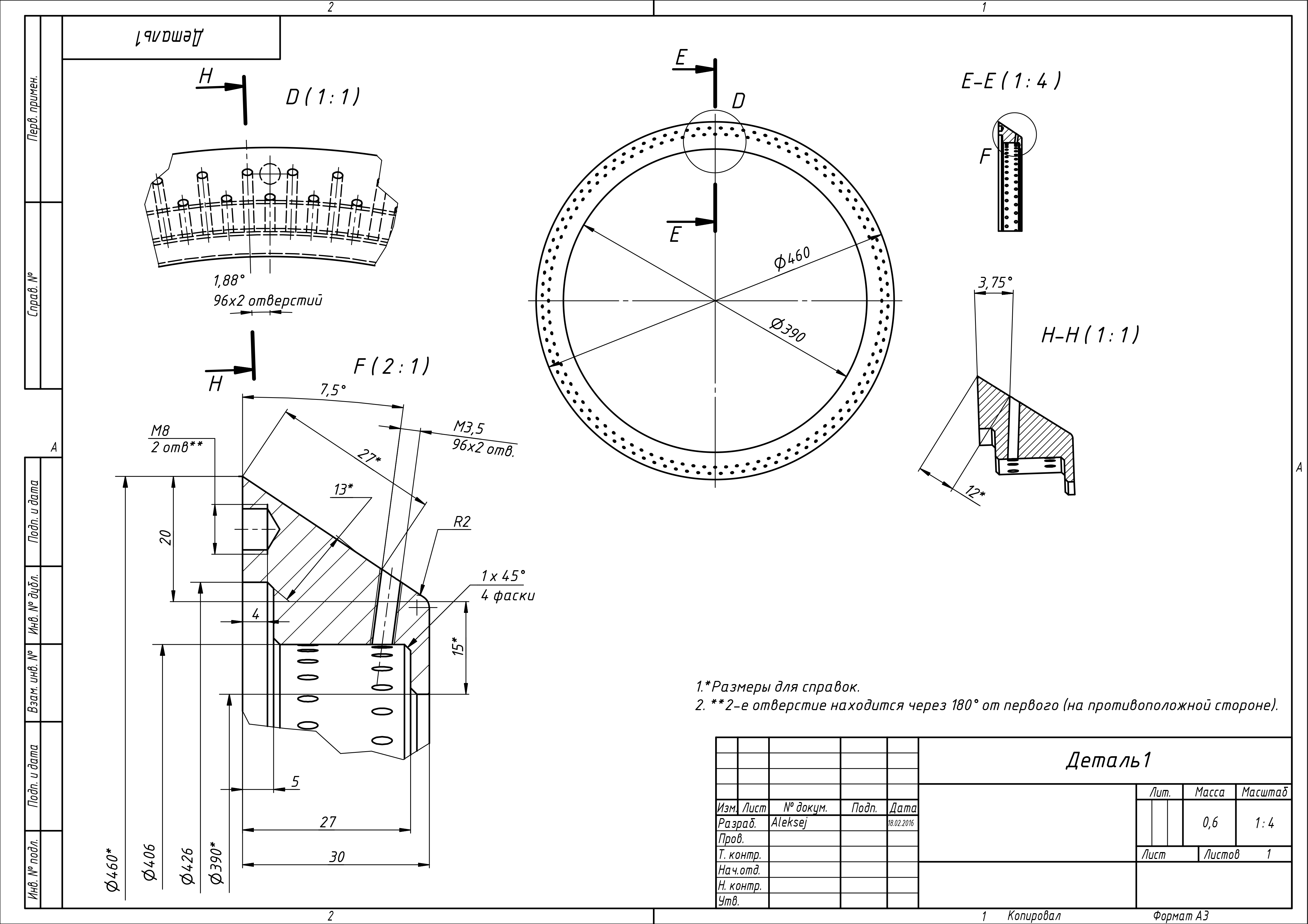
Вот нужно сделать такое кольцо
: https://yadi.sk/d/8RJQsQ3zpJeNR
Основная проблема в том, что в нем под двести отверстий, расположенных под углом к плоскости.
Я так понимаю нужно искать кого-то с пятикоррдинатным чпу? Где такое сделать занедорого:))
: https://yadi.sk/d/8RJQsQ3zpJeNR
Основная проблема в том, что в нем под двести отверстий, расположенных под углом к плоскости.
Я так понимаю нужно искать кого-то с пятикоррдинатным чпу? Где такое сделать занедорого:))
-
aftaev
- Зачётный участник

- Сообщения: 34042
- Зарегистрирован: 04 апр 2010, 19:22
- Репутация: 6194
- Откуда: Казахстан.
- Контактная информация:
Re: На чем и где сделать такое кольцо
Не обязательно 5ть координат. Делается приспособа, или наклонный столик и сверлится хоть на обычной сверлилке. У нас в городе это бы сделали на станке 80х годов большом координатнорасточном со столом 2000мм 
За недорого такое не сделают, тем более из латуни
Стоить может х2 - х5 цены материала. А материал будет стоить около 20 000 руб
За недорого такое не сделают, тем более из латуни
Стоить может х2 - х5 цены материала. А материал будет стоить около 20 000 руб
Дилетанту сложные вещи кажутся очень простыми, и только профессионал понимает насколько сложна самая простая вещь
Кто хочет - ищет возможности, кто не хочет - ищет оправдание.
Найди работу по душе и тебе не придется работать.
Кто хочет - ищет возможности, кто не хочет - ищет оправдание.
Найди работу по душе и тебе не придется работать.
- michael-yurov
- Почётный участник

- Сообщения: 11731
- Зарегистрирован: 26 июл 2012, 00:10
- Репутация: 4703
- Настоящее имя: Михаил Львович
- Откуда: Новоуральск
- Контактная информация:
Re: На чем и где сделать такое кольцо
Это диск проигрывателя?
Свистеть дырочки не будут?
Свистеть дырочки не будут?
- Сергей Саныч
- Мастер
- Сообщения: 9116
- Зарегистрирован: 30 май 2012, 14:20
- Репутация: 2858
- Откуда: Тюмень
- Контактная информация:
Re: На чем и где сделать такое кольцо
Почти полметра диаметром? И пустой внутри (кольцо)? Что ж на таком проигрывать?michael-yurov писал(а):Это диск проигрывателя?
Чудес не бывает. Бывают фокусы.
- michael-yurov
- Почётный участник

- Сообщения: 11731
- Зарегистрирован: 26 июл 2012, 00:10
- Репутация: 4703
- Настоящее имя: Михаил Львович
- Откуда: Новоуральск
- Контактная информация:
Re: На чем и где сделать такое кольцо
Да, был не прав.
И дырочек равное количество.
И дырочек равное количество.
-
Rockrider
- Новичок
- Сообщения: 13
- Зарегистрирован: 26 фев 2016, 21:25
- Репутация: 0
- Контактная информация:
Какой пластик выбрать?
Итак. хочется сделать декоративный элемент - солнышко, которое состоит из кольца и вставленных в него латунных прутков.
Прутья имеют диаметр по три мм.
Соответственно центральное кольцо должно быть довольно прочным, а также в нем должна легко нарезаться резьба.
Собственно само изделие выглядит примерно так:
https://gyazo.com/d967672e4439ee53b54e1a929d9277e4 само кольцо в диаметре 420 мм, толщиной 30 мм...
Вот и думаю, какой конструкционный пластик взять для таких целей?
Главное, чтобы потом еще покрасить можно было, то есть полиэтилен вряд ли...
Спасибо,
Антон
Прутья имеют диаметр по три мм.
Соответственно центральное кольцо должно быть довольно прочным, а также в нем должна легко нарезаться резьба.
Собственно само изделие выглядит примерно так:
https://gyazo.com/d967672e4439ee53b54e1a929d9277e4 само кольцо в диаметре 420 мм, толщиной 30 мм...
Вот и думаю, какой конструкционный пластик взять для таких целей?
Главное, чтобы потом еще покрасить можно было, то есть полиэтилен вряд ли...
Спасибо,
Антон
-
SVP
- Мастер
- Сообщения: 6140
- Зарегистрирован: 19 дек 2012, 15:49
- Репутация: 884
- Откуда: Москва
- Контактная информация:
Re: На чем и где сделать такое кольцо
Пластик чую еще дороже будет латуни, и желающих с ним работать еще меньше будет.
Яб подумал над сгибанием полосы металла с готовыми отверстиями по шаблону...
Яб подумал над сгибанием полосы металла с готовыми отверстиями по шаблону...
- Nick
- Мастер
- Сообщения: 22776
- Зарегистрирован: 23 ноя 2009, 16:45
- Репутация: 1735
- Заслуга: Developer
- Откуда: Gatchina, Saint-Petersburg distr., Russia
- Контактная информация:
Re: На чем и где сделать такое кольцо
Токарка + поворотный стол с делительным кругом. Сейчас что-то похожее делаем, большой тонкий круг с кучей выборок с шагом 2 градуса.Rockrider писал(а):Я так понимаю нужно искать кого-то с пятикоррдинатным чпу? Где такое сделать занедорого:))
Но делать имхо только из металла.
можно из алюминьки, потом покрасить. Или из латуни.
- michael-yurov
- Почётный участник

- Сообщения: 11731
- Зарегистрирован: 26 июл 2012, 00:10
- Репутация: 4703
- Настоящее имя: Михаил Львович
- Откуда: Новоуральск
- Контактная информация:
Re: На чем и где сделать такое кольцо
Может быть просто из толстого оргстекла?
Заказать у рекламщиков заготовку - вырежут лазером.
Потом уже что-то дальше думать.
На мой взгляд такие вещи делались в советской время немного с другой стороны.
Сначала было оборудование, материал и время на изготовление, а потом уже придумывали, что бы такого классного можно сделать с такими ресурсами.
Заказать у рекламщиков заготовку - вырежут лазером.
Потом уже что-то дальше думать.
На мой взгляд такие вещи делались в советской время немного с другой стороны.
Сначала было оборудование, материал и время на изготовление, а потом уже придумывали, что бы такого классного можно сделать с такими ресурсами.
