фрезерный, широкого применения - 1100х700х100

Фрезерные и гравировальные станки для обработки мягких материалов (дерево, пластики, мягкие металлы).
Аватара пользователя
Василий Владимирович
Мастер
Сообщения: 315
Зарегистрирован: 19 дек 2014, 08:34
Репутация: 17
Настоящее имя: Барвинов Василий Владимирович
Откуда: Московская область, Наро-Фоминский район
Контактная информация:

фрезерный, широкого применения - 1100х700х100

Сообщение Василий Владимирович »

Описание станка, основные характеристики:
- Портальный станок, со стальным порталом - труба 100х50х5, стальной рамой 80х60х6мм
- по всем осям рельсы 20 мм - Hiwin, каретки все одинаковые, чтобы была замена одна.
- по всем осям привод - рейка шестерня, с натяжителями
- моторы - серво, Kinco - X - 750W/ YиZ - 400W
- редукторы X - 090, с редукцией 1:12
Y и Z - 060, с редукцией 1:12 (еще возможно подредактирую)

Рабочее поле: 1100х700х90 мм

Обрабатываемые материалы: ПВХ, акрил, фанера, текстолит, магкие сплавы цветных металлов

Чертежи, фото, видео станка:
внешний вид (2866 просмотров) <a class='original' href='./download/file.php?id=63342&mode=view' target=_blank>Загрузить оригинал (193.68 КБ)</a>
внешний вид
внешний вид
внешний вид (2866 просмотров) <a class='original' href='./download/file.php?id=63343&mode=view' target=_blank>Загрузить оригинал (264.08 КБ)</a>
внешний вид
без "столешницы"

Вот такую планирую раму, из стальной трубы 80х60х6мм
Рама сварная за исключением труб 80х60 с привинчиными к ней направляющими HIWIN 20мм, которые потом болтами крепятся к сварной раме и регулируются.
внешний вид (2866 просмотров) <a class='original' href='./download/file.php?id=63344&mode=view' target=_blank>Загрузить оригинал (123.22 КБ)</a>
внешний вид
Сборка4_рама2.JPG (2866 просмотров) <a class='original' href='./download/file.php?id=63345&mode=view' target=_blank>Загрузить оригинал (111.86 КБ)</a>
Трубы боковые с проточками под рельс, для выравнивания и упора
крепление Hiwin к трубе.JPG (2866 просмотров) <a class='original' href='./download/file.php?id=63346&mode=view' target=_blank>Загрузить оригинал (165.31 КБ)</a>
В центре рамы, такая же труба с проточкой под зубчатую рейку, крепится к раме
крепление зубчатой рейки к трубе.JPG (2866 просмотров) <a class='original' href='./download/file.php?id=63347&mode=view' target=_blank>Загрузить оригинал (240.76 КБ)</a>
Крепление портала, состоящего из нижней части, выполненной из трубы 100х50х5, и "башмаков" 80х60, приваренной к ней и проточенными за раз местами под каретки, с упором двух левых кареток.
Сборка_портал HIWIN_ вид снизу.JPG (2866 просмотров) <a class='original' href='./download/file.php?id=63348&mode=view' target=_blank>Загрузить оригинал (210.27 КБ)</a>
Сборка_портал HIWIN_ крепление кареток.JPG (2866 просмотров) <a class='original' href='./download/file.php?id=63349&mode=view' target=_blank>Загрузить оригинал (170.85 КБ)</a>
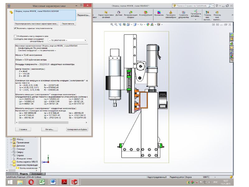
Вот сам портал, вес которого около 72 кг (в сборе с шпиндилем 1,5 кВт, шпиндель будет другой, с водяным охлаждением, китаец)
В нижней части натяжитель, маятникового типа, с подшипниками, (пружину еще не вставлял)
Сборка_портал HIWIN_ сталь100х50х5.JPG (2866 просмотров) <a class='original' href='./download/file.php?id=63350&mode=view' target=_blank>Загрузить оригинал (209.43 КБ)</a>
вот приводы осей Z и Y - тоже маятниковые натяжители, с пружинами
Сборка_портал HIWIN_ вид 1.JPG (2866 просмотров) <a class='original' href='./download/file.php?id=63351&mode=view' target=_blank>Загрузить оригинал (235.04 КБ)</a>
Сборка_портал HIWIN_ вид 2.JPG (2866 просмотров) <a class='original' href='./download/file.php?id=63352&mode=view' target=_blank>Загрузить оригинал (211.61 КБ)</a>
центр масс портала в сборе, у нижней каретки оси Y
центр масс портала.jpg (2866 просмотров) <a class='original' href='./download/file.php?id=63353&mode=view' target=_blank>Загрузить оригинал (89.36 КБ)</a>

Вопросы:
Что скажите в общем?
1. Ставить прямозубые или косозубые рейки? ориентировачно шестерня 30 зубов, модуль реек 1,5
2. Посоветуйте электроннику. Может KFLOP?
3. Хочу станок прикрепить на бетонный фундамент на анкерах. Не сильно ли это жестко будет?

Ориентировочный бюджет:
Еще точно не просчитывал, думаю постараться уложиться в 5-6 тыс. "вечнозеленых"....
Аватара пользователя
Василий Владимирович
Мастер
Сообщения: 315
Зарегистрирован: 19 дек 2014, 08:34
Репутация: 17
Настоящее имя: Барвинов Василий Владимирович
Откуда: Московская область, Наро-Фоминский район
Контактная информация:

Re: фрезерный, широкого применения - 1100х700х100

Сообщение Василий Владимирович »

Еще вопрос касательно редукторов.
Мне ведь не обязательны редукторы прецизионные? с меньше 5arc-мин. Подойдут ли для моих работ стандартые - менее 10 arc-min?
http://ru.aliexpress.com/store/product/ ... 70762.html
Работы в рекламной сфере, короба пластиковые, буквы светящие, стенды...
А если я на нем захочу вырезать к примеру печатную плату?

И еще вопрос - на счет использования мотора на оси Z - с тормозом. Он нужен? на других осях он нужен?
Аватара пользователя
Fisher
Почётный участник
Почётный участник
Сообщения: 3391
Зарегистрирован: 09 апр 2012, 12:39
Репутация: 424
Откуда: Киров
Контактная информация:

Re: фрезерный, широкого применения - 1100х700х100

Сообщение Fisher »

Василий Владимирович писал(а):Ставить прямозубые или косозубые рейки? ориентировачно шестерня 30 зубов, модуль реек 1,5
Если шестерни с поджимом, то прямозубые. Модуль можно меньше. Даже лучше меньше.
Василий Владимирович писал(а):Посоветуйте электроннику. Может KFLOP?
Почему-бы нет.
Василий Владимирович писал(а):Хочу станок прикрепить на бетонный фундамент на анкерах. Не сильно ли это жестко будет?
"Слишком жестко" - это не для станков.
Василий Владимирович писал(а):Мне ведь не обязательны редукторы прецизионные? с меньше 5arc-мин. Подойдут ли для моих работ стандартые - менее 10 arc-min?
http://ru.aliexpress.com/store/product/ ... 70762.html
Работы в рекламной сфере, короба пластиковые, буквы светящие, стенды...
28:1 это, конечно, слишком жестоко.
Василий Владимирович писал(а):И еще вопрос - на счет использования мотора на оси Z - с тормозом. Он нужен? на других осях он нужен?
Привод зубчатый по Z? - надо будет чем-то мотору помогать держать. На других необязательно - не те массы.
www.cncru.ru - все виды станков с ЧПУ. Комплектующие.
Аватара пользователя
Лодочник
Мастер
Сообщения: 2178
Зарегистрирован: 10 авг 2012, 05:24
Репутация: 1835
Настоящее имя: Олег
Откуда: г.Королев
Контактная информация:

Re: фрезерный, широкого применения - 1100х700х100

Сообщение Лодочник »

Fisher писал(а):Привод зубчатый по Z? - надо будет чем-то мотору помогать держать. На других необязательно - не те массы.
Помогать не надо, сервы же планируются с редуктором, а вот тормоз обязателен в таком случае. Иначе падать будет после выключения питания.
Аватара пользователя
Fisher
Почётный участник
Почётный участник
Сообщения: 3391
Зарегистрирован: 09 апр 2012, 12:39
Репутация: 424
Откуда: Киров
Контактная информация:

Re: фрезерный, широкого применения - 1100х700х100

Сообщение Fisher »

Лодочник писал(а):Помогать не надо, сервы же планируются с редуктором
Точно. Сервы-же...
www.cncru.ru - все виды станков с ЧПУ. Комплектующие.
Аватара пользователя
Predator
Мастер
Сообщения: 9583
Зарегистрирован: 18 июл 2013, 18:26
Репутация: 2531
Контактная информация:

Re: фрезерный, широкого применения - 1100х700х100

Сообщение Predator »

Василий Владимирович писал(а):Ставить прямозубые или косозубые рейки?
Косозубые тише работают.
Василий Владимирович писал(а):Может KFLOP?
Если есть возможность и средства, то лучше его и ставить.
Василий Владимирович писал(а):на счет использования мотора на оси Z - с тормозом. Он нужен?
Уж точно не помешает на оси Z, на другие оси моторы с тормозом не нужны.
Василий Владимирович писал(а):Хочу станок прикрепить на бетонный фундамент на анкерах.
А для чего? Достаточно поставить его на виброопоры.
Аватара пользователя
Василий Владимирович
Мастер
Сообщения: 315
Зарегистрирован: 19 дек 2014, 08:34
Репутация: 17
Настоящее имя: Барвинов Василий Владимирович
Откуда: Московская область, Наро-Фоминский район
Контактная информация:

Re: фрезерный, широкого применения - 1100х700х100

Сообщение Василий Владимирович »

1.Значит косозубые, насколько я знаю лучше, соответственно с прижимом. Косозубым же прижим лишним не будет? На счет модуля поменьше подумаю.
А скажите, то что модуль 1,0 допустим - это же и зубья мельче, не будут ли быстрее снашиваться рейки?
2.На счет редуктора - там я ссылку выложел, на ней 1:28!Ё... Это не так, у меня планируется 1:12, я там писал ниже.
3.Спасибо за подсказку на счет тормоза на моторе оси Z. Я так и надеялся, поэтому на чертеже поставил только его с тормозом, остальные без тормоза.
4. Станок целиком весить будет чуть больше 200 кг. Его на виброопорах мотылять небудет?
Или в трубы рамы "пяска" насыпать? ((шутка) в каждой шутке есть доля правды..)

...а на счет прецизионности редукторов что-нибудь скажите? Нужно ли прецизионные, или стандартных хватит?
Аватара пользователя
Лодочник
Мастер
Сообщения: 2178
Зарегистрирован: 10 авг 2012, 05:24
Репутация: 1835
Настоящее имя: Олег
Откуда: г.Королев
Контактная информация:

Re: фрезерный, широкого применения - 1100х700х100

Сообщение Лодочник »

Вот у меня лично такие вопросы:
Зачем для рекламы такой маленький станок?
Зачем такому маленькому станку для рекламы сервоприводы?
За что оси Х серва 750Вт? Она весь станок в узел способна завязать...
Зачем такому маленькому станку рейки? Скорости и на ШВП приличные легко достижимы.
Аватара пользователя
ultrus
Мастер
Сообщения: 2039
Зарегистрирован: 09 апр 2013, 05:42
Репутация: 1329
Настоящее имя: Юрий
Откуда: Воронеж
Контактная информация:

Re: фрезерный, широкого применения - 1100х700х100

Сообщение ultrus »

Василий Владимирович писал(а):Что скажите в общем?
По моему, это как на Камазе таксовать. Получится недофрезер и перероутер.

Для Ваших целей:
Василий Владимирович писал(а):Работы в рекламной сфере, короба пластиковые, буквы светящие, стенды...
Есть масса бюджетных и сотни раз обкатанных конструкции рекламных станков. Серваки, рейки, редуктора, тормоза, нужны ли они станку с таким маленьким рабочем полем?
"Если хочешь сделать что-то хорошо, сделай это сам."
Фердинанд Порше
Аватара пользователя
Василий Владимирович
Мастер
Сообщения: 315
Зарегистрирован: 19 дек 2014, 08:34
Репутация: 17
Настоящее имя: Барвинов Василий Владимирович
Откуда: Московская область, Наро-Фоминский район
Контактная информация:

Re: фрезерный, широкого применения - 1100х700х100

Сообщение Василий Владимирович »

По моему опыту в рекламном бизнесе, станок больших размеров не особо нужен. По крайней мере в 95% случаев. Я думал делать полноформатный, но думаю начинать с такого формата. И меньшезатратно и меньше места. На счет затратности - станок полного формата выходит практически в 2 раза дороже.

Сервоприводы.. ууу.... есть заказы не мелкие, а крупно серийные, немного не из "оперы рекламной". Оооо-очень много резки ПВХ, вспененного...
Станок на сервах, раскрамцает лист, в 2 раза быстрее чем на шаговиках. И рабочие скорости можно смело выше брать, пропусков не будет, и скорости перемещения с ускорениями, ощутимо выше. Ведь так?

На осьХ, можно было бы и поставить 400Вт, но во первых, при весе портала 72-75 кг, чтобы портал перемещался со скоростью и ускорениями, близкими к "нормальным" (нормальными я называю скорость 30м/мин. в холостую, ускорение 1g, которые присущи станкам "Мультикам" 3000 серии . Я видел как они работают, после этого, на китайца на шаговиках, даже смотреть не охота... - и даже 1000 серия быстрее китайцев).
И кроме того, писал производителям в штаты, чтоб дали цифирки.... Уж больно мне понравилось.

Вот расчет на мой портал 72 кг.
расчет ось Х- 72 кг.jpg (2767 просмотров) <a class='original' href='./download/file.php?id=63421&mode=view' target=_blank>Загрузить оригинал (154.86 КБ)</a>
Как видно из расчетов, момент на двигателе при таких оборотах, близких к номинальным 3000, равен 2,07 Нм, что не обеспечит мотор 400Вт.
Конечно же я несколько завысил на 40% коэф.запаса. Для надежности.

Вот графики зависимости крут.момента от оборотов для данных моторов:
121212.jpg (2767 просмотров) <a class='original' href='./download/file.php?id=63422&mode=view' target=_blank>Загрузить оригинал (190.88 КБ)</a>
Как видно, при таких оборотах мотор 400Вт, не имеет необходимого крутящего момента.
А 750Вт имеет! Это раз.
Второе - я могу конечно поставить редуктор не 1:12, а допустим 1:24, тогда выйду на необходимые для 400Вт моменты, но достигается это при 5000! об/мин! - многовато, не думаете?
Третье - мотор 750 Вт - почемуто будет стоить при покупке на 10 долл. дешевле, чем 400Вт - ..ну я не знаю почему????!!! Но так.

Поставить гибриды, которые по цене отличаются от серв на 15-20%???? Наверно глуповато. Тем более что Характеристики у них не радужные:
121213.jpg (2767 просмотров) <a class='original' href='./download/file.php?id=63423&mode=view' target=_blank>Загрузить оригинал (334.21 КБ)</a>
что с 4 N, что с 8N - добиться требуемого момента можно только на скоростях 600 и 700 об, для каждого из движков.
Плюс еще фактор - гибридные движки, как и шаговики, имеют габариты под редуктор как минимум 090 (который весит в 1,5 раза больше чем 060), и вес практически в 2 раза большый чем (серва - 1,8, с тормозом - 2,3) (гибрид, который и то чахлый для этого станка - 2,5 и 4,0 кг из тех что на графиках)
Соответственно вот наверно и мой ответ. А чем сервы хуже гибридов? разве что ценой на 15-20%?

Если дадите совет как удешевить и не терять производительность станка - я буду искренне рад и благодарен!
Да и еще, я там писал - что для широкого применения, вдруг я буду на нем печатные плата "пачками" резать... :D
Вложения
121214.jpg (2767 просмотров) <a class='original' href='./download/file.php?id=63424&mode=view' target=_blank>Загрузить оригинал (155.65 КБ)</a>
121215.jpg (2767 просмотров) <a class='original' href='./download/file.php?id=63425&mode=view' target=_blank>Загрузить оригинал (590.74 КБ)</a>
Аватара пользователя
Василий Владимирович
Мастер
Сообщения: 315
Зарегистрирован: 19 дек 2014, 08:34
Репутация: 17
Настоящее имя: Барвинов Василий Владимирович
Откуда: Московская область, Наро-Фоминский район
Контактная информация:

Re: фрезерный, широкого применения - 1100х700х100

Сообщение Василий Владимирович »

Ребят, подскажите по редукторам, если кто сталкивался. Нужны ли прецизионные или достаточно стандартных?
Я там выше ссылку кидал, там есть в таблице на сколько люфтом они отличаются.
И по конструктиву - "мой недоКамаз - перетакси", считаете редукторы в нем лишними? Поставить ремни со шкивами, так выйдет то на то, или напрямую?
Ну напрямую с шаговиками поставить жернючие шаговые, с моментом 28-30N? Думаете будет выход? Или это нормально? Ну китайцы ставят - но я видел как это потом ползает... У жирнючих - резонанс будет на низких оборотах, а на высоких (1500 об. :) )упадет момент. Не страшно?
Или считаете следует облегчить конструкцию? Уберу к примеру рейку с оси Z, поставлю ШВП, задеру в небо мотор, плечо у портала будет высоким, качать будет больше. Ведь так?
Уберу с оси Y, поставлю ШВП, что выиграю? Масса увеличится....
Аватара пользователя
MX_Master
Мастер
Сообщения: 7490
Зарегистрирован: 27 июн 2015, 19:45
Репутация: 3113
Настоящее имя: Михаил
Откуда: Алматы
Контактная информация:

Re: фрезерный, широкого применения - 1100х700х100

Сообщение MX_Master »

Редуктора прецизионные? Для рекламок-то? Не помню, чтобы в рекламных целях резали с точностью до соток. Десятки тут за глаза. И голых шаговиков 8.5N вам хватит на зуб.рейке. Подберёте режимы опытным путём и трясти не будет. Помню кто-то советовал листовую резину под рейку подложить - вибрации станут меньше
Аватара пользователя
Василий Владимирович
Мастер
Сообщения: 315
Зарегистрирован: 19 дек 2014, 08:34
Репутация: 17
Настоящее имя: Барвинов Василий Владимирович
Откуда: Московская область, Наро-Фоминский район
Контактная информация:

Re: фрезерный, широкого применения - 1100х700х100

Сообщение Василий Владимирович »

А вы правы Fisher, модуль поменьше, следовательно и сервы можно поменьше поставить. Точно! Спасибо.
Сейчас сделал расчеты с модулем 1, я немного потеряю в скоростях, но смогу уменьшить мощности моторов, соответственно и вес.
Лодочник - и вы тут тоже свой вклад внесли. СПС. Еще не пересчитывал ось X, персчитаю выложу данные, что получилось.
..во пересчитал:
расчеты нагрузок 200_200_400.jpg (2738 просмотров) <a class='original' href='./download/file.php?id=63428&mode=view' target=_blank>Загрузить оригинал (293.96 КБ)</a>
вот кривая момента для двигателя 200 Вт, вроде укладываюсь. Пришлось снизить несколько скорость по оси Х, но я думаю, на мелком станке, я больших скоростей не достигну. Всеже тут главное ускорения.
график сервы 200Вт.jpg (2738 просмотров) <a class='original' href='./download/file.php?id=63429&mode=view' target=_blank>Загрузить оригинал (95.49 КБ)</a>
Еще плюс, что все моторы получаются под один тип редуктора - 060!
Следовательно, так как редукторы все с одним передаточным числом, то можно будет взять один для НЗ - это я мыслю в слух...

Во как выручает форум! Одна голова хорошо - а форум лучше....
Аватара пользователя
Василий Владимирович
Мастер
Сообщения: 315
Зарегистрирован: 19 дек 2014, 08:34
Репутация: 17
Настоящее имя: Барвинов Василий Владимирович
Откуда: Московская область, Наро-Фоминский район
Контактная информация:

Re: фрезерный, широкого применения - 1100х700х100

Сообщение Василий Владимирович »

MX_Master писал(а):Редуктора прецизионные? Для рекламок-то? Не помню, чтобы в рекламных целях резали с точностью до соток. Десятки тут за глаза. И голых шаговиков 8.5N вам хватит на зуб.рейке. Подберёте режимы опытным путём и трясти не будет. Помню кто-то советовал листовую резину под рейку подложить - вибрации станут меньше
..голых - это без редукторов?
Аватара пользователя
Василий Владимирович
Мастер
Сообщения: 315
Зарегистрирован: 19 дек 2014, 08:34
Репутация: 17
Настоящее имя: Барвинов Василий Владимирович
Откуда: Московская область, Наро-Фоминский район
Контактная информация:

Re: фрезерный, широкого применения - 1100х700х100

Сообщение Василий Владимирович »

Вот расчеты и графики с голыми (без редукторов) гибридами Leadshine
расчеты нагрузок гибридов 8N и 12N.jpg (2730 просмотров) <a class='original' href='./download/file.php?id=63430&mode=view' target=_blank>Загрузить оригинал (191.41 КБ)</a>
Получается, что 8N, сможет вытянуть портал по осиХ, ну при очень низких оборотах - порядка 100!
12N - тянет, и даже график его поподает в данные обороты и момент. Но весят они "мама не горюй" по 5,7 кг!!
Согласен, без редуктора, это не намного больше чем серва с редуктором, и дешевле.
Но ведь станок ползать будет. Ведь так?
Ускорения будут у него нормальные?
А точность будет? Вот вы все говорите, что в рекламном бизнесе точность не нужна, я согласен, когда это касается букв на магазин, размером допустим 20см, а если клише надо вырезать, для печати на пакеты с гербом казино?
Вот это с шаговиками и без редукторов вырежет?
7919370.jpg (2730 просмотров) <a class='original' href='./download/file.php?id=63431&mode=view' target=_blank>Загрузить оригинал (23.18 КБ)</a>
Клише-1.jpg (2730 просмотров) <a class='original' href='./download/file.php?id=63432&mode=view' target=_blank>Загрузить оригинал (103.62 КБ)</a>
А к примеру -я писал выше, если я печатную плату вырезать решил?

Или для этого отдельный гравировальный станок сделать?
Не хотелось бы.
Аватара пользователя
Василий Владимирович
Мастер
Сообщения: 315
Зарегистрирован: 19 дек 2014, 08:34
Репутация: 17
Настоящее имя: Барвинов Василий Владимирович
Откуда: Московская область, Наро-Фоминский район
Контактная информация:

Re: фрезерный, широкого применения - 1100х700х100

Сообщение Василий Владимирович »

Ну Вы конечно, скажите, что ты Василий, хочешь и конфетку съесть.. и чаю выпить (извените, у нас в Казахстане, чай почитаемый продукт ).
Согласен. Но вот если со стороны посмотреть - стоит поставить сервы и редукторы всеже - или бы вы не стали.
Плюс я еще там писал что много есть работы по резки вспененного ПВХ, а там оч. много проходов, это для форм.
..Не ругайтесь! А понял, что это не рекламные дела.
[youtube]https://www.youtube.com/watch?v=c2e9xDNq-QM[/youtube]
вот пример китайца точащего пеноплен, .. он как будто не проснулся, все ускорения по осям вялые.

А вот еще, ну ведь живее же, не как "дохлый лебедь"
[youtube]https://www.youtube.com/watch?v=voy7EcaF_h4[/youtube]
Аватара пользователя
MX_Master
Мастер
Сообщения: 7490
Зарегистрирован: 27 июн 2015, 19:45
Репутация: 3113
Настоящее имя: Михаил
Откуда: Алматы
Контактная информация:

Re: фрезерный, широкого применения - 1100х700х100

Сообщение MX_Master »

Я не с графика, а с опыта шаговики 8.5N.m советую. 8-ми выводные, с параллельным подключением обмоток. 4 кг мощности )) На рейке 1-го модуля при 48 вольтовом питании в холостую скорость будет до 60 м/мин, микрошаг 1/8. Тащит вес 30 кг. Если запитать нормальным напряжением (до 80 В), думаю, можно и до 100 м/мин. Но при таких скоростях износ рейки на лицо, без постоянной смазки не обойтись. Рабочую подачу больше 5 м/мин не ставлю, т.к. в основном все фрезы меньше 6 мм.

Это, если нужна скорость. А если нужно чуть точнее - скидываете микрошаг на 1/32 хотя бы. Соответственно, подача в 4 раза меньше, но уже можно гравировочки делать, платы вырезать
Аватара пользователя
Лодочник
Мастер
Сообщения: 2178
Зарегистрирован: 10 авг 2012, 05:24
Репутация: 1835
Настоящее имя: Олег
Откуда: г.Королев
Контактная информация:

Re: фрезерный, широкого применения - 1100х700х100

Сообщение Лодочник »

Василий Владимирович писал(а):На счет затратности - станок полного формата выходит практически в 2 раза дороже.
При использовании сервоприводов и приличной стойки ЧПУ- не уверен, т.к. эти позиции составляют значительный процент ценовой составляющей. Увеличение только на трубах(металле) рельсах, рейках.
Василий Владимирович писал(а):Станок на сервах, раскрамцает лист, в 2 раза быстрее чем на шаговиках. И рабочие скорости можно смело выше брать, пропусков не будет, и скорости перемещения с ускорениями, ощутимо выше. Ведь так?
Вряд ли так. Скорость реза зависит от параметров фрезы, выигрыш только на холостых переездах, что на мелких станках не сильно ощутимо.
Василий Владимирович писал(а):нормальными я называю скорость 30м/мин. в холостую, ускорение 1g, которые присущи станкам "Мультикам" 3000 серии
Такая скорость на шаговиках и реечном приводе обычное дело. С ускорением не ошиблись?
Василий Владимирович писал(а):[youtube]https://www.youtube.com/watch?v=c2e9xDNq-QM[/youtube]
вот пример китайца точащего пеноплен, .. он как будто не проснулся, все ускорения по осям вялые
Одна из самых неудачных китайских конструкций на мой взгляд. Пример не показательный.
Чтобы видео отображалось в теме, уберите букву s в https, тогда будет так -
Василий Владимирович писал(а): А вот еще, ну ведь живее же, не как "дохлый лебедь"
http://www.youtube.com/watch?v=voy7EcaF_h4
Совсем не сверхскоростной станок.
У сервоприводов есть один нюанс - нет четкого положения удержания, в настройках необходим компромис. Поэтому сделать станок качественно отрабатывающий очень мелкие элементы, типа таких
Изображение
проще на шаговиках
Аватара пользователя
Predator
Мастер
Сообщения: 9583
Зарегистрирован: 18 июл 2013, 18:26
Репутация: 2531
Контактная информация:

Re: фрезерный, широкого применения - 1100х700х100

Сообщение Predator »

Василий Владимирович писал(а):А вы правы Fisher, модуль поменьше, следовательно и сервы можно поменьше поставить.
Сейчас сделал расчеты с модулем 1, я немного потеряю в скоростях.
Тут дело даже не в скоростях, просто серва на 750 Вт весь этот станок в бараний рог свернуть может и даже не подавится ;)
Аватара пользователя
Василий Владимирович
Мастер
Сообщения: 315
Зарегистрирован: 19 дек 2014, 08:34
Репутация: 17
Настоящее имя: Барвинов Василий Владимирович
Откуда: Московская область, Наро-Фоминский район
Контактная информация:

Re: фрезерный, широкого применения - 1100х700х100

Сообщение Василий Владимирович »

MX_Master писал(а):Я не с графика, а с опыта шаговики 8.5N.m советую. 8-ми выводные, с параллельным подключением обмоток. 4 кг мощности )) На рейке 1-го модуля при 48 вольтовом питании в холостую скорость будет до 60 м/мин, микрошаг 1/8. Тащит вес 30 кг. Если запитать нормальным напряжением (до 80 В), думаю, можно и до 100 м/мин. Но при таких скоростях износ рейки на лицо, без постоянной смазки не обойтись. Рабочую подачу больше 5 м/мин не ставлю, т.к. в основном все фрезы меньше 6 мм.

Это, если нужна скорость. А если нужно чуть точнее - скидываете микрошаг на 1/32 хотя бы. Соответственно, подача в 4 раза меньше, но уже можно гравировочки делать, платы вырезать
Спасибо - раз это практика, тем более у вас такой работает - учту обязательно.!!
Ответить

Вернуться в «Фрезерные станки по дереву и пластикам, гравировальные станки, роутеры»