И чего посоветовали?Тенгель писал(а): люди спрашивали совета на какие нормальные заменить.
Постройка небольшого лазерного гравёра. (переименовано)
- Дрюня
- Почётный участник

- Сообщения: 2040
- Зарегистрирован: 25 ноя 2013, 00:19
- Репутация: 1504
- Настоящее имя: Андрей
- Откуда: Днепр
- Контактная информация:
Re: Нужны пару советов по постройке лазерного резака/гравёра
- Ershoff
- Почётный участник

- Сообщения: 653
- Зарегистрирован: 21 окт 2013, 11:49
- Репутация: 241
- Откуда: Киев. Украина
- Контактная информация:
Re: Нужны пару советов по постройке лазерного резака/гравёра
Итак.
По всему выходит, что станочку таки быть, и таки с уклоном в гравировку (как и писал больше векторную)
Уже приехали некоторые детали из солнечной китайщины, а некоторые как раз едут.
Материал для станины есть, движков шаговых немного завалялось, драйвера тоже имеются,
общая картинка в голове сложилась, так что работаем.
Трубу для начала решил брать 40 вт дешёвую китайскую - соответственно вопрос:
На что обращать внимание
при выборе блока питания для неё (ну кроме мощности конечно) ?
пс. Ну и попробую ещё раз спросить за редуктора - в чём высший смысл их использования ?
Так ли они необходимы - в одних конструкциях они есть, в других нет... я на распутье
По всему выходит, что станочку таки быть, и таки с уклоном в гравировку (как и писал больше векторную)
Уже приехали некоторые детали из солнечной китайщины, а некоторые как раз едут.
Материал для станины есть, движков шаговых немного завалялось, драйвера тоже имеются,
общая картинка в голове сложилась, так что работаем.
Трубу для начала решил брать 40 вт дешёвую китайскую - соответственно вопрос:
На что обращать внимание
при выборе блока питания для неё (ну кроме мощности конечно) ?
пс. Ну и попробую ещё раз спросить за редуктора - в чём высший смысл их использования ?
Так ли они необходимы - в одних конструкциях они есть, в других нет... я на распутье
"Авось" - в умелых руках, мощный инструмент снижения стоимости итогового изделия
- Дрюня
- Почётный участник

- Сообщения: 2040
- Зарегистрирован: 25 ноя 2013, 00:19
- Репутация: 1504
- Настоящее имя: Андрей
- Откуда: Днепр
- Контактная информация:
Re: Нужны пару советов по постройке лазерного резака/гравёра
У меня 40 Вт трубка пыхтела от 80 Вт ВБП - никаких проблем не было, только в софте никогда не задавал мощность больше 50%.Ershoff писал(а): Трубу для начала решил брать 40 вт дешёвую китайскую - соответственно вопрос:
На что обращать внимание
при выборе блока питания для неё (ну кроме мощности конечно) ?
Это я к тому, что если в будущем будет труба мощнее тогда можно БП сразу брать под неё. Хотя, если уклон больше под гравировку, то больше 40Вт трубки и не нужно.
Редукторы на моём станке стояли 1/3, но у меня были сервы. Может редукторы ставят кроме как для изменения момента/скорости/дискретности ещё и для уменьшения нагрузки на подшипники двигателя?
- Ershoff
- Почётный участник

- Сообщения: 653
- Зарегистрирован: 21 окт 2013, 11:49
- Репутация: 241
- Откуда: Киев. Украина
- Контактная информация:
Re: Нужны пару советов по постройке лазерного резака/гравёра
Ну с мощностью как раз понятно, уже знаю что более мощный ставить можно,
я имел ввиду на что обратить внимание в самом БП
их опять же разные есть - например 40 вт за 80 басков и 40 вт за 200 - насколько оправдана переплата ?
ну имхую, что нагрузкой на подшипники двигателя можно пренебречь
пысы взял голову под 2 типа линз с фокусным 2" как основную и 4" если захочется порезать что-то толще 3 мм
(ну и линзы тоже естественно купил)
я имел ввиду на что обратить внимание в самом БП
их опять же разные есть - например 40 вт за 80 басков и 40 вт за 200 - насколько оправдана переплата ?
ну имхую, что нагрузкой на подшипники двигателя можно пренебречь
пысы взял голову под 2 типа линз с фокусным 2" как основную и 4" если захочется порезать что-то толще 3 мм
(ну и линзы тоже естественно купил)
"Авось" - в умелых руках, мощный инструмент снижения стоимости итогового изделия
- Дрюня
- Почётный участник

- Сообщения: 2040
- Зарегистрирован: 25 ноя 2013, 00:19
- Репутация: 1504
- Настоящее имя: Андрей
- Откуда: Днепр
- Контактная информация:
Re: Нужны пару советов по постройке лазерного резака/гравёра
Ershoff писал(а): пысы взял голову под 2 типа линз с фокусным 2" как основную и 4" если захочется порезать что-то толще 3 мм
(ну и линзы тоже естественно купил)
Вспомнил, что основная задача векторная гравировка - 4" наверное правильный выбор, можно будет пренебречь некоторой кривизной материала (фанеры например)
П.С. Про БП не подскажу тонкости, у меня был всего один (шел со станком) и я к нему близко старался не подходить.
- Ershoff
- Почётный участник

- Сообщения: 653
- Зарегистрирован: 21 окт 2013, 11:49
- Репутация: 241
- Откуда: Киев. Украина
- Контактная информация:
Re: Нужны пару советов по постройке лазерного резака/гравёра
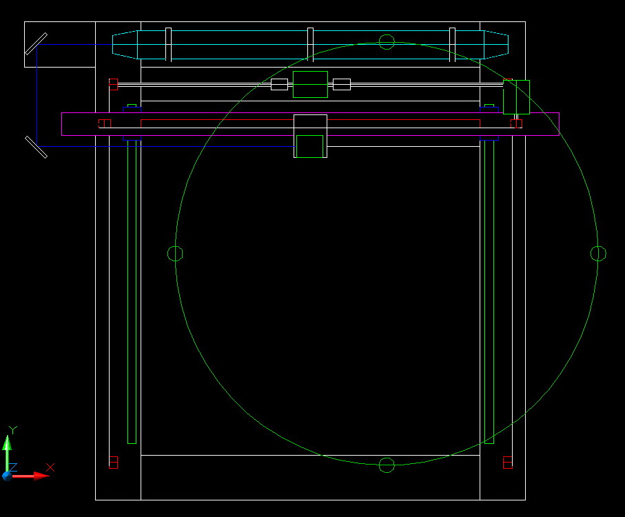
Набросал компоновочку в первом приближении.
Рабочее поле выходит примерно 520х520, нормально.
пысы просто голова под два фокусных расчитана, посему взял и линзы соответствующие, а там видно будет.
Рабочее поле выходит примерно 520х520, нормально.
пысы просто голова под два фокусных расчитана, посему взял и линзы соответствующие, а там видно будет.
"Авось" - в умелых руках, мощный инструмент снижения стоимости итогового изделия
- ultrus
- Мастер
- Сообщения: 2039
- Зарегистрирован: 09 апр 2013, 05:42
- Репутация: 1329
- Настоящее имя: Юрий
- Откуда: Воронеж
- Контактная информация:
Re: Нужны пару советов по постройке лазерного резака/гравёра
Что купил? Делись, давай. Интересно же.Ershoff писал(а):Уже приехали некоторые детали из солнечной китайщины, а некоторые как раз едут.
Почему решил ремни поставить не как у всех над направляйками, а сбоку? Есть резон?Ershoff писал(а):Набросал компоновочку в первом приближении.
"Если хочешь сделать что-то хорошо, сделай это сам."
Фердинанд Порше
Фердинанд Порше
- Ershoff
- Почётный участник

- Сообщения: 653
- Зарегистрирован: 21 окт 2013, 11:49
- Репутация: 241
- Откуда: Киев. Украина
- Контактная информация:
Re: Нужны пару советов по постройке лазерного резака/гравёра
Да всё стандартно - голова из первого поста темы с лазерной указкой (нафиг надо не знаю, но хай буде)ultrus писал(а):Ershoff писал(а): Что купил? Делись, давай. Интересно же.
...
Почему решил ремни поставить не как у всех над направляйками, а сбоку? Есть резон?
Зеркала 25 мм SI, линзы 20 мм с фокусным 2" и 4" Zn
Рельсы с каретками 15-е 3 шт по 600мм длиной
Шестерёнки на 24 зуба под 15 мм ремень в соответствующем количестве.
Трубу выбрал но пока не заказывал.
С контроллером пока не решил.
Всё остальное у меня и так есть.
По установке ремней - ну я ж написал, что в первом приближении моделька.
"Авось" - в умелых руках, мощный инструмент снижения стоимости итогового изделия
- ultrus
- Мастер
- Сообщения: 2039
- Зарегистрирован: 09 апр 2013, 05:42
- Репутация: 1329
- Настоящее имя: Юрий
- Откуда: Воронеж
- Контактная информация:
Re: Нужны пару советов по постройке лазерного резака/гравёра
Раз так, то станочек должен быть довольно подвижным. Особенно по оси, на которой висит голова.Ershoff писал(а): станочку таки быть, и таки с уклоном в гравировку
И сам портал облегчить надо бы максимально.
Может рассмотреть, как вариант, облегчённую алюминиевую высокоскоростную роликовую рельсу, типа этих?
http://ru.aliexpress.com/store/product/ ... 07682.html
http://ru.aliexpress.com/store/product/ ... 26215.html
Был в командировке в Сербии и впервые увидел такой рельс на самодельном лазере 900х1200. Начал расспрашивать и мне популярно объяснили.
Лёгкий портал и ролики - меньше затрат на движки с драйверами и чтоб шустрее бегал на большой мощности при гравировке.
А внизу у них стояли обычные 15-е Хивины. Жаль фото где-то похерил.
"Если хочешь сделать что-то хорошо, сделай это сам."
Фердинанд Порше
Фердинанд Порше
- Ershoff
- Почётный участник

- Сообщения: 653
- Зарегистрирован: 21 окт 2013, 11:49
- Репутация: 241
- Откуда: Киев. Украина
- Контактная информация:
Re: Нужны пару советов по постройке лазерного резака/гравёра
Вы не совсем внимательно читали мой пост о задачах для данного станка.
Его основная задача по гравировке - точная и тонкая гравировка по вектору.
И порезка тонкого (до 5 мм )акрила разумеется.
Скорости сопоставимые со скоростью среднего фрезерного станка меня устраивают.
Растровая гравировка не слишком интересна.
Я не занимаюсь надгробиями и свадебными фотографиями.
Также не занимаюсь сувениркой.
И да, разумеется я постараюсь максимально облегчить балку.
Такие рельсы, как по ссылкам я рассматривал как вариант, но пока остановился на классической рельсе.
В общем там видно будет.
Его основная задача по гравировке - точная и тонкая гравировка по вектору.
И порезка тонкого (до 5 мм )акрила разумеется.
Скорости сопоставимые со скоростью среднего фрезерного станка меня устраивают.
Растровая гравировка не слишком интересна.
Я не занимаюсь надгробиями и свадебными фотографиями.
Также не занимаюсь сувениркой.
И да, разумеется я постараюсь максимально облегчить балку.
Такие рельсы, как по ссылкам я рассматривал как вариант, но пока остановился на классической рельсе.
В общем там видно будет.
"Авось" - в умелых руках, мощный инструмент снижения стоимости итогового изделия
- Fisher
- Почётный участник

- Сообщения: 3391
- Зарегистрирован: 09 апр 2012, 12:39
- Репутация: 424
- Откуда: Киров
- Контактная информация:
Re: Нужны пару советов по постройке лазерного резака/гравёра
Небюджетный вариант за полметра рельса и каретку. Профильный хивин дешевле выйдет однако.ultrus писал(а):Может рассмотреть, как вариант, облегчённую алюминиевую высокоскоростную роликовую рельсу, типа этих?
www.cncru.ru - все виды станков с ЧПУ. Комплектующие.
- ultrus
- Мастер
- Сообщения: 2039
- Зарегистрирован: 09 апр 2013, 05:42
- Репутация: 1329
- Настоящее имя: Юрий
- Откуда: Воронеж
- Контактная информация:
Re: Нужны пару советов по постройке лазерного резака/гравёра
По любому дешевле, никто не спорит. Я про вес и скорость, а не процену.Fisher писал(а):Профильный хивин дешевле выйдет однако.
Задавая вопрос преследовал личный интерес.
Сейчас режу диодом 3 Вт ложементы из экструдированного пенополиэтилена. Не устраивает скорость.
Решил собрать 40 ваттник на трубе.
И призадумался. С какой скоростью мне придётся гонять портал, чтобы рез не получался слишком толстым?
Хвати ли Хивина? Или скоростную рельсу поставить?
"Если хочешь сделать что-то хорошо, сделай это сам."
Фердинанд Порше
Фердинанд Порше
- Ershoff
- Почётный участник

- Сообщения: 653
- Зарегистрирован: 21 окт 2013, 11:49
- Репутация: 241
- Откуда: Киев. Украина
- Контактная информация:
Re: Нужны пару советов по постройке лазерного резака/гравёра
Я вот как мыслил при выборе - весу в полметровой рельсе фигня
Балка само собой профиль алюминиевый, каретка одна, голова весит грамм 100.
Имхую что всё со скоростью будет норм.
Балка само собой профиль алюминиевый, каретка одна, голова весит грамм 100.
Имхую что всё со скоростью будет норм.
"Авось" - в умелых руках, мощный инструмент снижения стоимости итогового изделия
- Дрюня
- Почётный участник

- Сообщения: 2040
- Зарегистрирован: 25 ноя 2013, 00:19
- Репутация: 1504
- Настоящее имя: Андрей
- Откуда: Днепр
- Контактная информация:
Re: Нужны пару советов по постройке лазерного резака/гравёра
На моём станке были направляющие из алюминиевой трубы 40х40, станки эти делают в Харькове.
В профильной трубе с двух сторон фрезерован V-паз, в паз на эпоксидку вклеены шлифованные прутки диаметром около 6 мм (направляющие INA). Каретка выполнена в виде плиты с четырьмя колёсиками, колёсики как "железнодорожные" с подшипником внутри.
Фотка с сайта завода не очень подробная, но может кому пригодиться Конструкция очень лёгкая, но всё равно на высоких скоростях при векторной гравировке была "петля" в месте смены траектории, думаю это от большого рабочего поля 1430х990 и не очень высокой жесткости станка.
В профильной трубе с двух сторон фрезерован V-паз, в паз на эпоксидку вклеены шлифованные прутки диаметром около 6 мм (направляющие INA). Каретка выполнена в виде плиты с четырьмя колёсиками, колёсики как "железнодорожные" с подшипником внутри.
Фотка с сайта завода не очень подробная, но может кому пригодиться Конструкция очень лёгкая, но всё равно на высоких скоростях при векторной гравировке была "петля" в месте смены траектории, думаю это от большого рабочего поля 1430х990 и не очень высокой жесткости станка.
- Fisher
- Почётный участник

- Сообщения: 3391
- Зарегистрирован: 09 апр 2012, 12:39
- Репутация: 424
- Откуда: Киров
- Контактная информация:
Re: Нужны пару советов по постройке лазерного резака/гравёра
У нас на лазере 15 хивины на обеих осях. Скорость 1000 мм/с полёт нормальный.
www.cncru.ru - все виды станков с ЧПУ. Комплектующие.
- ultrus
- Мастер
- Сообщения: 2039
- Зарегистрирован: 09 апр 2013, 05:42
- Репутация: 1329
- Настоящее имя: Юрий
- Откуда: Воронеж
- Контактная информация:
Re: Нужны пару советов по постройке лазерного резака/гравёра
А движки какие на осях?Fisher писал(а):У нас на лазере 15 хивины на обеих осях. Скорость 1000 мм/с полёт нормальный.
"Если хочешь сделать что-то хорошо, сделай это сам."
Фердинанд Порше
Фердинанд Порше
- Fisher
- Почётный участник

- Сообщения: 3391
- Зарегистрирован: 09 апр 2012, 12:39
- Репутация: 424
- Откуда: Киров
- Контактная информация:
Re: Нужны пару советов по постройке лазерного резака/гравёра
23-и
57-76
57-76
www.cncru.ru - все виды станков с ЧПУ. Комплектующие.
- Ershoff
- Почётный участник

- Сообщения: 653
- Зарегистрирован: 21 окт 2013, 11:49
- Репутация: 241
- Откуда: Киев. Украина
- Контактная информация:
Re: Нужны пару советов по постройке лазерного резака/гравёра
Таксь.
Наконец-то доползли рельсы.
В целом, как соберусь с духом, можно приступать к сборке механики.
На радостях прикинул макет станка в натуральную величину
Нормально, мой любимый цвет, мой любимый размер
Наконец-то доползли рельсы.
В целом, как соберусь с духом, можно приступать к сборке механики.
На радостях прикинул макет станка в натуральную величину
Нормально, мой любимый цвет, мой любимый размер
"Авось" - в умелых руках, мощный инструмент снижения стоимости итогового изделия
- Ershoff
- Почётный участник

- Сообщения: 653
- Зарегистрирован: 21 окт 2013, 11:49
- Репутация: 241
- Откуда: Киев. Украина
- Контактная информация:
Re: Постройка небольшого лазерного гравёра. (переименовано)
Скоро сказка сказывается, да не скоро дело делается 
Однако процесс идёт. Куча металлолома утилизиреутся, что весьма радует.
Фотооотчёт прилагается.
Сварен столик, до ума конечно ещё доводить и доводить, и тем не менее...
За компанию приводится в порядок токарный ТВ16, который уже лет 5 пылится без дела, хотя комплектуха есть Ну и конечно самое интересное : "где-то за городом, очень недорого папа купил автомобиль (с)"
Попался мне по случаю БП не то 60 вт не то 80(так утверждал продавец) вроде рабочий.
(если даже нет, то не жалко, учитывая смешную сумму заплаченную за данный девайс
)
Сайт производителя вроде нашёл - http://www.eclaser.cn/productinfo.asp?id=247
написал но пока молчат, модель старая лет её больше 5, но по фоткам на сайте вроде похоже на 60 вт
http://ru.made-in-china.com/co_laser-cn ... grgng.html
может кто чего знает за такие БП ? чё куда подключать в смысле
псы прошу модераторов перенести тему в профильный раздел, спасибо
Однако процесс идёт. Куча металлолома утилизиреутся, что весьма радует.
Фотооотчёт прилагается.
Сварен столик, до ума конечно ещё доводить и доводить, и тем не менее...
За компанию приводится в порядок токарный ТВ16, который уже лет 5 пылится без дела, хотя комплектуха есть Ну и конечно самое интересное : "где-то за городом, очень недорого папа купил автомобиль (с)"
Попался мне по случаю БП не то 60 вт не то 80(так утверждал продавец) вроде рабочий.
(если даже нет, то не жалко, учитывая смешную сумму заплаченную за данный девайс
Сайт производителя вроде нашёл - http://www.eclaser.cn/productinfo.asp?id=247
написал но пока молчат, модель старая лет её больше 5, но по фоткам на сайте вроде похоже на 60 вт
http://ru.made-in-china.com/co_laser-cn ... grgng.html
может кто чего знает за такие БП ? чё куда подключать в смысле
"Авось" - в умелых руках, мощный инструмент снижения стоимости итогового изделия
- Ershoff
- Почётный участник

- Сообщения: 653
- Зарегистрирован: 21 окт 2013, 11:49
- Репутация: 241
- Откуда: Киев. Украина
- Контактная информация:
Re: Постройка небольшого лазерного гравёра. (переименовано)
пыпысы только что заслали мне китайцы сервис мануал на современный их БП
вроде всё сопоставил правильно ?
вроде всё сопоставил правильно ?
"Авось" - в умелых руках, мощный инструмент снижения стоимости итогового изделия