Если я правильно понимаю, фреза должна стоять по центру масс портала?Nick писал(а): Главное рассчитать так, чтобы фреза нормально вставала.
А расстояния в 50 мм хватит для смены инструмента?

Если я правильно понимаю, фреза должна стоять по центру масс портала?Nick писал(а): Главное рассчитать так, чтобы фреза нормально вставала.











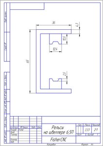
у швеллера, если не ошибаюсь, внутренние стенки немного угловатые(не паролельны). как бы не пришлось фрезеровать!Fisher писал(а): Буду делать на швеллере 6,5П


Это направляющие с печатной машинки! есть у меня пара таких!phoenixzp писал(а): И что это за внутренние вставки?
