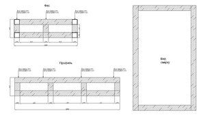
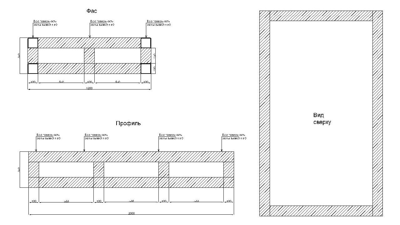
Решил сделать фрезерный станок с рабочим полем 1300*2000 мм. Рама будет сварная, из квадратных труб 100*100*8. После сварки и отпуска, ее поверхность будет фрезероваться, для выведения в 0.
По механике. Хочу сделать все на ШВП, по Y - 2 шт (TBI 2510), по Х - 1 шт (TBI 2005 или 2505), по Z - 1 шт (TBI 1604 или 1605). Рельсы
Двигателя 4 шт
Контроллер
Интересно ваше мнение.
