Фрезеровка нескольких деталей

Запрос и предложение услуг по обработке, проектированию, моделированию и т.д.
Правила форума
Разрешается публиковать предложения по предоставлению услуг как физическим лицам так и коммерческим организациям, при соблюдении следующих условий:
1. должны присутствовать характеристики предлагаемых услуг, возможности оборудования
2. должна присутствовать стоимость услуги
3. должно присутствовать описание способов оплаты, доставки и места расположения (город)
4. один продавец - одна тема

Фотографии товаров приветствуются (фотографии должны быть вложениями к сообщениям).

Возможно размещение ссылки на свой сайт, с описанием товара, при обязательном соблюдении пунктов 1-3.

Администрация форума может удалить тему или сообщения из данного раздела на свое усмотрение, без объяснения причин!
Аватара пользователя
pearlpepper
Новичок
Сообщения: 19
Зарегистрирован: 13 ноя 2015, 22:23
Репутация: 0
Настоящее имя: Максим
Откуда: Москва
Контактная информация:

Фрезеровка нескольких деталей

Сообщение pearlpepper »

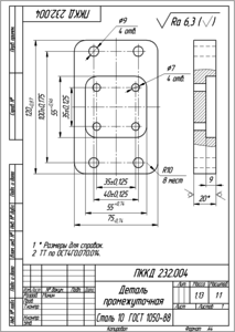
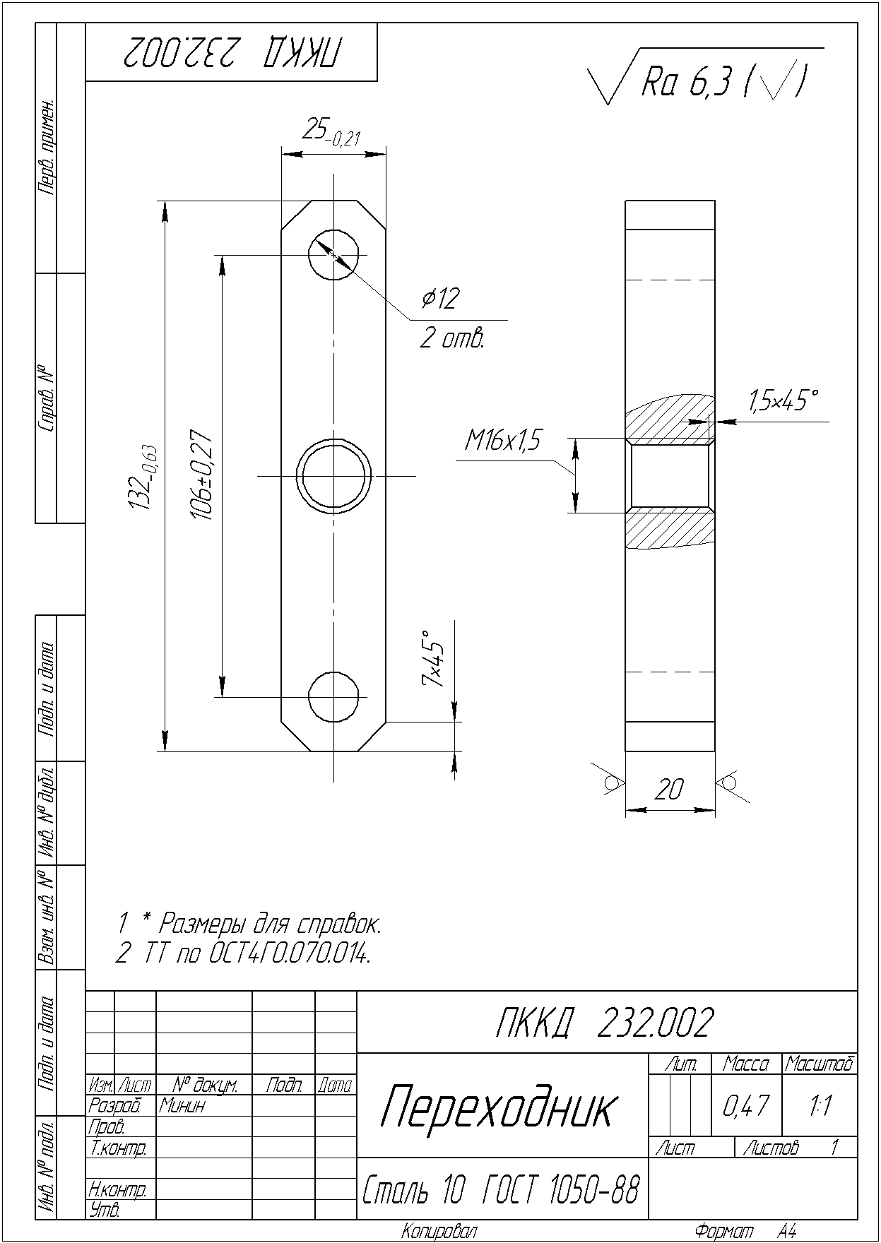
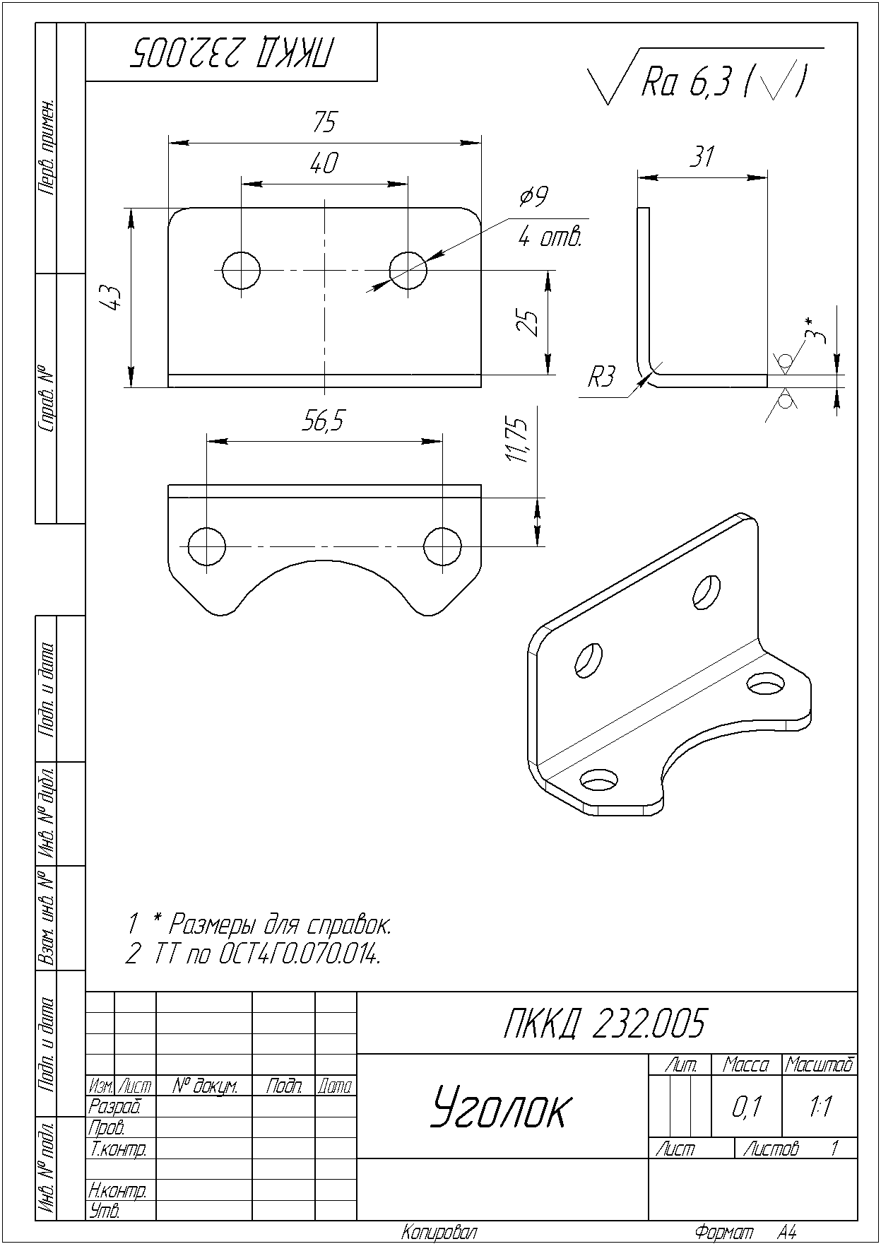
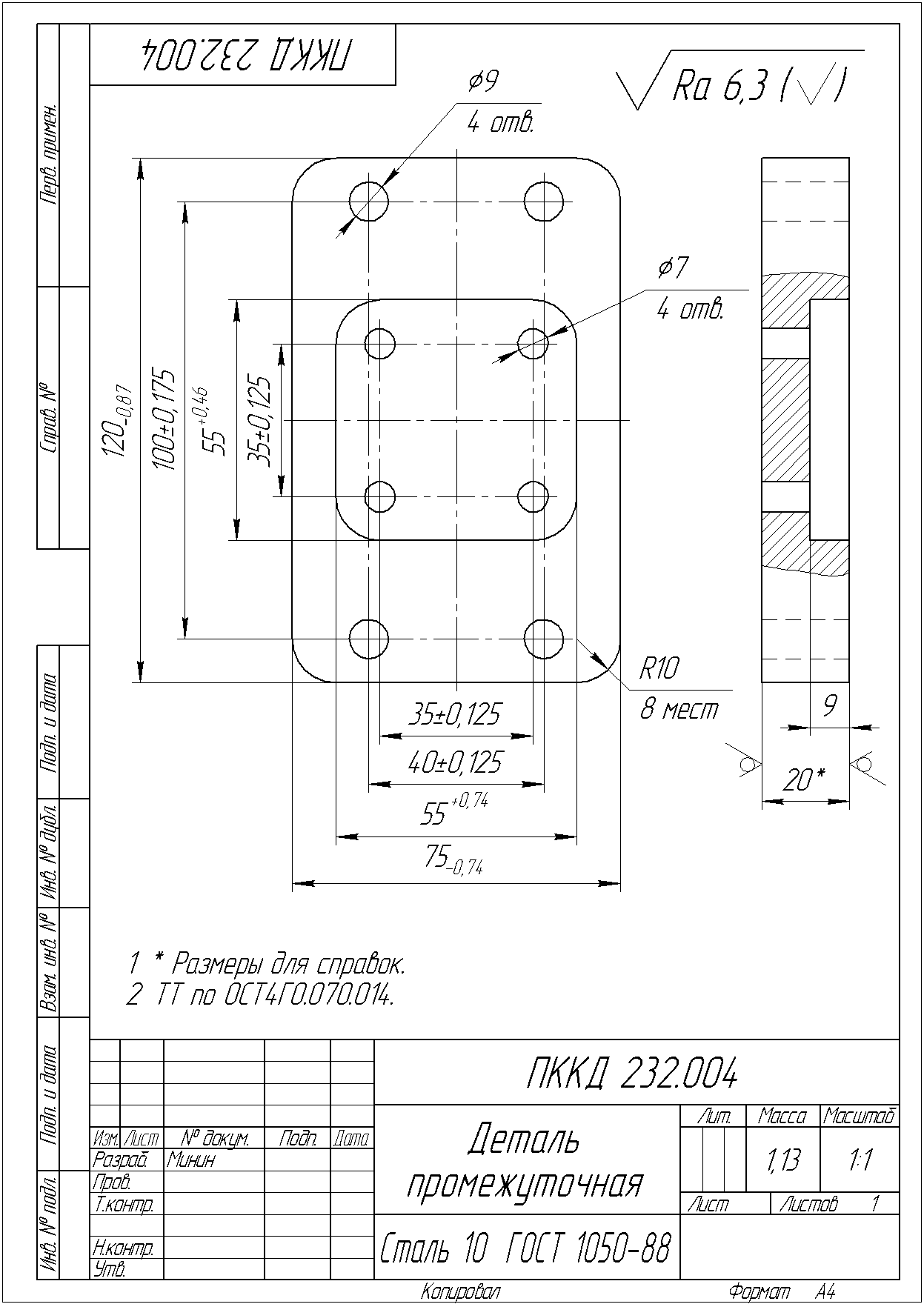
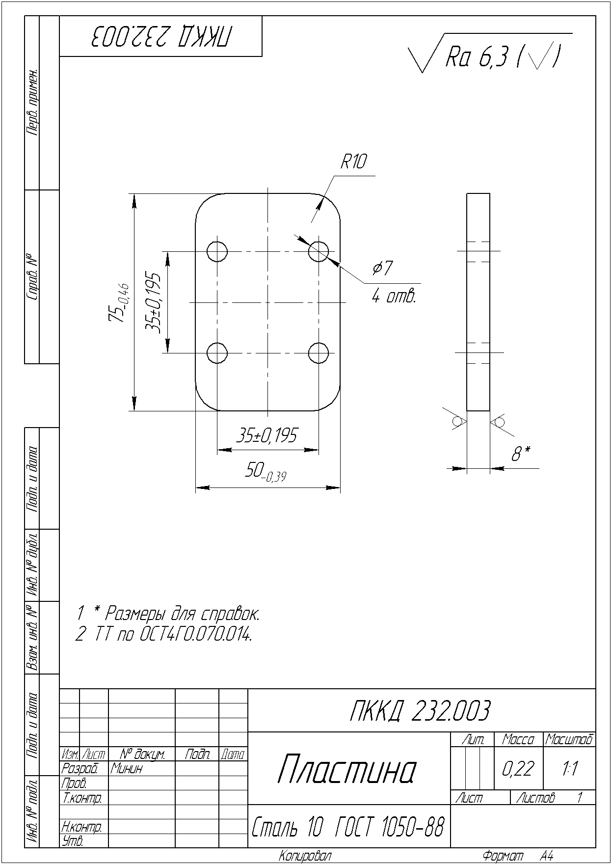
Необходимо отфрезеровать несколько деталей. Скорее всего материалом будет дюраль. По материалам определяемся.
Каждой детали по 2 штуки.
А так же вырезать и согнуть 2 уголка.
Вложения
Фланец _ ПККД 232.001.png (1621 просмотр) <a class='original' href='./download/file.php?id=86181&mode=view' target=_blank>Загрузить оригинал (24.68 КБ)</a>
Пластина _ ПККД 232.003.png (1621 просмотр) <a class='original' href='./download/file.php?id=86182&mode=view' target=_blank>Загрузить оригинал (17.68 КБ)</a>
Деталь промежуточная _ ПККД 232.004.png (1621 просмотр) <a class='original' href='./download/file.php?id=86183&mode=view' target=_blank>Загрузить оригинал (24.18 КБ)</a>
Переходник _ ПККД  232.002.png (1621 просмотр) <a class='original' href='./download/file.php?id=86184&mode=view' target=_blank>Загрузить оригинал (20.33 КБ)</a>
Уголок _ ПККД 232.005.png (1621 просмотр) <a class='original' href='./download/file.php?id=86185&mode=view' target=_blank>Загрузить оригинал (20.83 КБ)</a>
Развертка - уголок крепления цилиндра.DXF
(24.53 КБ) 911 скачиваний
Привезу под заказ запчасти для станков

Вернуться в «Услуги»