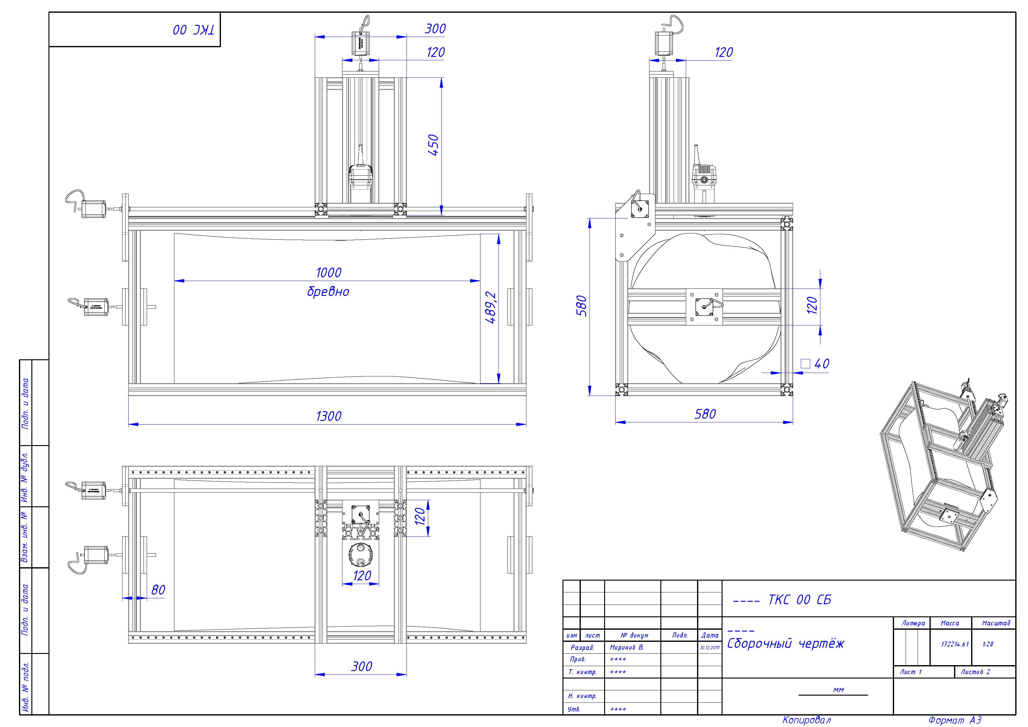
Токарно-фрезерный по дереву 1000х300х300
- voverrr
- Мастер
- Сообщения: 242
- Зарегистрирован: 07 июн 2019, 01:22
- Репутация: 4
- Настоящее имя: Vladimir Mironov
- Откуда: Moscow
- Контактная информация:
Токарно-фрезерный по дереву 1000х300х300
Здравствуйте.
Просьба подсказать/покритиковать/отговорить от создания поворотно-фрезерного станка для изготовления объёмных, например, статуэток, ножек стульев и тому подобного.
Стыдоба, я даже не знаю точно как он называется и сколько в нём координат. Три? Три с половиной? Две с половиной?
Планирую его из конструкционного алюминиевого профиля 40х40 и 40х120(на каретке)
Вращать оси движками NEMA 23
управлять ардуиной UNO + драйверами dm542
Винты трапециевидные d12мм с алиэкспресса
Направляющие MGN 12 с каретками MGN 12h
Материал - дерево, клееный брус с размерами заготовки до 1000х300х300 (в этом месте подскажите целесообразность такого размера. Возможно, такой объём немного не дотягивает до какого-нибудь стандартного размера, при котором открываются какие-то более широкие возможности).
По возможности стараюсь избежать деталей из алюминиевой плиты, т.к. нет в доступе металлистов-фрезеровщиков, поэтому держатели подшипников планирую из литого поликарбоната 2х10мм. Разбогатею - заменю на алюминий, но как показал опыт моего первого лазера - поликарбонат очень неплохо выполняет свои задачи. Единственное, что эта его прозрачность смотрится как-то по-дилетантски.
Фрезеровать на первое время думаю ручным фрезером макита 3709 530 ватт, потом поменяю на какой-нибудь шпиндель от 2000 ватт, чтобы посадочное место 65мм было то же самое.
Единственная не-алиэкспрессная деталь здесь - профиль от компании "соберизавод". по факту он получается дешевле, чем из Китая. Ну и подшипиники 10х10х30 можно купить в любом автомагазине.
Использовать станок планирую для мало-мальски коммерческих целей. Резать какой-нибудь деревянный декор для мебели или что подвернётся похожее.
Пока что станок существет только в чертежах.
По бюджету, думаю, постройка выйдет в пределах 25 тыс руб.
Какие есть сомнения:
- достаточно ли такого сечения профиля? Лазер построил из 30х30 и он ощущается как оооочень прочный.
- хватит ли мощи центрального осевого движка, чтобы ворочать такую заготовку. В принципе, на картинке она показана для максимально возможного случая. Весит это бревно 140 кг.
Может быть, стоит движок цеплять через ременную передачу?
- Достаточно ли прочности профиля 40х120 в качестве боковин?
Собирать предполагаю на быстрые соединители.
- Расположение оси заготовки - лучше горизонтально или вертикально?
- Какие применяют способы крепления заготовки в осях? У меня в голове вертится пока что-то типа ось с перепендикуляно приваренной квадратной пластиной, к которой на саморезах в торцы заготовки крепится заготовка.
Просьба подсказать/покритиковать/отговорить от создания поворотно-фрезерного станка для изготовления объёмных, например, статуэток, ножек стульев и тому подобного.
Стыдоба, я даже не знаю точно как он называется и сколько в нём координат. Три? Три с половиной? Две с половиной?
Планирую его из конструкционного алюминиевого профиля 40х40 и 40х120(на каретке)
Вращать оси движками NEMA 23
управлять ардуиной UNO + драйверами dm542
Винты трапециевидные d12мм с алиэкспресса
Направляющие MGN 12 с каретками MGN 12h
Материал - дерево, клееный брус с размерами заготовки до 1000х300х300 (в этом месте подскажите целесообразность такого размера. Возможно, такой объём немного не дотягивает до какого-нибудь стандартного размера, при котором открываются какие-то более широкие возможности).
По возможности стараюсь избежать деталей из алюминиевой плиты, т.к. нет в доступе металлистов-фрезеровщиков, поэтому держатели подшипников планирую из литого поликарбоната 2х10мм. Разбогатею - заменю на алюминий, но как показал опыт моего первого лазера - поликарбонат очень неплохо выполняет свои задачи. Единственное, что эта его прозрачность смотрится как-то по-дилетантски.
Фрезеровать на первое время думаю ручным фрезером макита 3709 530 ватт, потом поменяю на какой-нибудь шпиндель от 2000 ватт, чтобы посадочное место 65мм было то же самое.
Единственная не-алиэкспрессная деталь здесь - профиль от компании "соберизавод". по факту он получается дешевле, чем из Китая. Ну и подшипиники 10х10х30 можно купить в любом автомагазине.
Использовать станок планирую для мало-мальски коммерческих целей. Резать какой-нибудь деревянный декор для мебели или что подвернётся похожее.
Пока что станок существет только в чертежах.
По бюджету, думаю, постройка выйдет в пределах 25 тыс руб.
Какие есть сомнения:
- достаточно ли такого сечения профиля? Лазер построил из 30х30 и он ощущается как оооочень прочный.
- хватит ли мощи центрального осевого движка, чтобы ворочать такую заготовку. В принципе, на картинке она показана для максимально возможного случая. Весит это бревно 140 кг.
Может быть, стоит движок цеплять через ременную передачу?
- Достаточно ли прочности профиля 40х120 в качестве боковин?
Собирать предполагаю на быстрые соединители.
- Расположение оси заготовки - лучше горизонтально или вертикально?
- Какие применяют способы крепления заготовки в осях? У меня в голове вертится пока что-то типа ось с перепендикуляно приваренной квадратной пластиной, к которой на саморезах в торцы заготовки крепится заготовка.
-
aftaev
- Зачётный участник

- Сообщения: 34042
- Зарегистрирован: 04 апр 2010, 19:22
- Репутация: 6194
- Откуда: Казахстан.
- Контактная информация:
Re: Токарно-фрезерный по дереву 1000х300х300
voverrr писал(а):Направляющие MGN 12 с каретками MGN 12h
voverrr писал(а):Материал - дерево, клееный брус с размерами заготовки до 1000х300х300
Дилетанту сложные вещи кажутся очень простыми, и только профессионал понимает насколько сложна самая простая вещь
Кто хочет - ищет возможности, кто не хочет - ищет оправдание.
Найди работу по душе и тебе не придется работать.
Кто хочет - ищет возможности, кто не хочет - ищет оправдание.
Найди работу по душе и тебе не придется работать.
- sima8520
- Почётный участник

- Сообщения: 4510
- Зарегистрирован: 24 ноя 2016, 23:35
- Репутация: 1617
- Настоящее имя: Илья
- Откуда: Беларусь, Гомель
- Контактная информация:
Re: Токарно-фрезерный по дереву 1000х300х300
хочу увидеть как бревно весом кг 70-100 будет крутиться на шаговике
-
Rionet
- Мастер
- Сообщения: 422
- Зарегистрирован: 26 янв 2016, 22:01
- Репутация: 83
- Настоящее имя: Глазунов Роман
- Откуда: Волгоград
- Контактная информация:
Re: Токарно-фрезерный по дереву 1000х300х300
Выглядит не очень сбалансировано, хлипко и слабо. Шпиндель сколько лет будет это полено грызть. На деревяшках обычно скоростей и мощностей не стесняются. Видел подобные фигуры обрабатывают большой дисковой фрезой на шпинделе.
Металлический аналог - https://youtu.be/Yzsx2qJt6Vc?t=159
Металлический аналог - https://youtu.be/Yzsx2qJt6Vc?t=159
- voverrr
- Мастер
- Сообщения: 242
- Зарегистрирован: 07 июн 2019, 01:22
- Репутация: 4
- Настоящее имя: Vladimir Mironov
- Откуда: Moscow
- Контактная информация:
Re: Токарно-фрезерный по дереву 1000х300х300
Так-то я ориентировался вот на этот станок.Rionet писал(а):Выглядит не очень сбалансировано, хлипко и слабо.
https://чпу-моделист.рф/p327268724-toka ... tanok.html
Но кажется мне, что 350 тысяч за него - это дофига перебор. Себестоимость я озвучил выше.
Ну, 70-10, скорее всего, туда и не будет устанавливаться.sima8520 писал(а):хочу увидеть как бревно весом кг 70-100 будет крутиться на шаговике
Взять, например, фигуру у вас на аватарке. Она вписывается в блок, допустим, 400х400х1000. Но мы же для её изготовления не будем переклеивать такой, а выклеим отросток для руки, головы с каким-то припуском.
В итоге будет основной чурбан с отростком раза в три будет легче.
Но крутиться напрямую на шаговике, думаю, не будет. Нагорожу редуктор.
-
shur
- Опытный
- Сообщения: 158
- Зарегистрирован: 09 сен 2011, 22:39
- Репутация: 30
- Контактная информация:
Re: Токарно-фрезерный по дереву 1000х300х300
Для того чтобы оно крутилось , его надо ещё в станок засунуть исхитриться...sima8520 писал(а):хочу увидеть как бревно весом кг 70-100 будет крутиться на шаговике
Компоновка засадная .
- voverrr
- Мастер
- Сообщения: 242
- Зарегистрирован: 07 июн 2019, 01:22
- Репутация: 4
- Настоящее имя: Vladimir Mironov
- Откуда: Moscow
- Контактная информация:
Re: Токарно-фрезерный по дереву 1000х300х300
Между балками просвет 500 мм.
Максимальный диаметр бревна у меня планируется 300мм.
По 10см на сторону вполне должно хватить.
Максимальный диаметр бревна у меня планируется 300мм.
По 10см на сторону вполне должно хватить.
-
aftaev
- Зачётный участник

- Сообщения: 34042
- Зарегистрирован: 04 апр 2010, 19:22
- Репутация: 6194
- Откуда: Казахстан.
- Контактная информация:
Re: Токарно-фрезерный по дереву 1000х300х300
Зачем такие толстые рельсы и винты. На али вроде и 8мм естьvoverrr писал(а):Винты трапециевидные d12мм с алиэкспресса
Направляющие MGN 12 с каретками MGN 12h
Дилетанту сложные вещи кажутся очень простыми, и только профессионал понимает насколько сложна самая простая вещь
Кто хочет - ищет возможности, кто не хочет - ищет оправдание.
Найди работу по душе и тебе не придется работать.
Кто хочет - ищет возможности, кто не хочет - ищет оправдание.
Найди работу по душе и тебе не придется работать.
- voverrr
- Мастер
- Сообщения: 242
- Зарегистрирован: 07 июн 2019, 01:22
- Репутация: 4
- Настоящее имя: Vladimir Mironov
- Откуда: Moscow
- Контактная информация:
Re: Токарно-фрезерный по дереву 1000х300х300
а рельсы 12мм потому что в профиле посадочное место под 12.

А винты...
Для такой длины самый большой выбор в районе двенадцатых.
Тоньше - они короткие.
Вроде бы есть вариант купить плашки-метчики и нарезать самому какой угодно длины, но я с ними пока не касался. Там какие-то гайки с шариками внутри. Не уверен, что плашка подойдёт для шариков.

А винты...
Для такой длины самый большой выбор в районе двенадцатых.
Тоньше - они короткие.
Вроде бы есть вариант купить плашки-метчики и нарезать самому какой угодно длины, но я с ними пока не касался. Там какие-то гайки с шариками внутри. Не уверен, что плашка подойдёт для шариков.
-
aftaev
- Зачётный участник

- Сообщения: 34042
- Зарегистрирован: 04 апр 2010, 19:22
- Репутация: 6194
- Откуда: Казахстан.
- Контактная информация:
Re: Токарно-фрезерный по дереву 1000х300х300
Подход понятен. Делать не как нужно, а потому что так удобнейvoverrr писал(а):а рельсы 12мм потому что в профиле посадочное место под 12.
Похоже еще много чего не касался. Иначе понимал какую дичь делаешьvoverrr писал(а):Вроде бы есть вариант купить плашки-метчики и нарезать самому какой угодно длины, но я с ними пока не касался.
Дилетанту сложные вещи кажутся очень простыми, и только профессионал понимает насколько сложна самая простая вещь
Кто хочет - ищет возможности, кто не хочет - ищет оправдание.
Найди работу по душе и тебе не придется работать.
Кто хочет - ищет возможности, кто не хочет - ищет оправдание.
Найди работу по душе и тебе не придется работать.
- Mamont
- Мастер
- Сообщения: 2005
- Зарегистрирован: 10 дек 2015, 12:21
- Репутация: 391
- Настоящее имя: Виталий
- Откуда: РБ Минск
- Контактная информация:
Re: Токарно-фрезерный по дереву 1000х300х300
С таким подходом и до строительных шпилек недалеко
Минимум для такого станка: направляющие - круглый вал на опоре SBR16, трапециидальный винт 16*4 с бронзовыми/капролоновыми гайками. Профиль - 80*80
Рекомендации - уменьшить ход Z до200. Добавить еще одну координатуперемещения поперек оси
Минимум для такого станка: направляющие - круглый вал на опоре SBR16, трапециидальный винт 16*4 с бронзовыми/капролоновыми гайками. Профиль - 80*80
Рекомендации - уменьшить ход Z до200. Добавить еще одну координатуперемещения поперек оси
- voverrr
- Мастер
- Сообщения: 242
- Зарегистрирован: 07 июн 2019, 01:22
- Репутация: 4
- Настоящее имя: Vladimir Mironov
- Откуда: Moscow
- Контактная информация:
Re: Токарно-фрезерный по дереву 1000х300х300
Не вижу никакого криминала в использовании строительных шпилек. На этапе отладки и обучения шпильки вполне пригодны, чтобы на их основе точнее понять какие нужны трапециевидные винты и всякие зазоры.Mamont писал(а):С таким подходом и до строительных шпилек недалеко
Про третью координату поперёк я думал. А так ли прям она нужна? Если какое-то супер-рококо резать, тогда, возможно, она необходима, а для несильно кудрявой резьбы, надеюсь, можно и этими координатами обойтись.
Уменьшить ход по Z - это да, можно и уменьшить.
Я нагрузил в солидворксе основную раму тридцатью двумя килограммами. Максимальное отклонение на таком метровом пролёте составило 0,7мм. Это при вышеуказанном профиле40х40.
А при профиле 45х45

отклонение составило 0,2мм. Это чисто сам алюминий, без направляшек и прочего. 32 кг - это две пудовые гири.
- hmnijp
- Мастер
- Сообщения: 1754
- Зарегистрирован: 20 авг 2017, 15:02
- Репутация: 542
- Настоящее имя: Константин
- Откуда: Ульяновск
- Контактная информация:
Re: Токарно-фрезерный по дереву 1000х300х300
А что там может быть не понятного вообще, чтобы этим извращаться? понять что нормально и долго это работать не будет?voverrr писал(а):На этапе отладки и обучения шпильки вполне пригодны, чтобы на их основе точнее понять какие нужны трапециевидные винты и всякие зазоры.
Особенно сейчас, когда китайские дешевые швп, стоят не многим больше чем трапециевидные винты.
-
aftaev
- Зачётный участник

- Сообщения: 34042
- Зарегистрирован: 04 апр 2010, 19:22
- Репутация: 6194
- Откуда: Казахстан.
- Контактная информация:
Re: Токарно-фрезерный по дереву 1000х300х300
Почему 32кг, а не 320кг?voverrr писал(а):Я нагрузил в солидворксе основную раму тридцатью двумя килограммами.
Нормально, чтобы фрезы ломатьvoverrr писал(а):Максимальное отклонение на таком метровом пролёте составило 0,7мм.
Дилетанту сложные вещи кажутся очень простыми, и только профессионал понимает насколько сложна самая простая вещь
Кто хочет - ищет возможности, кто не хочет - ищет оправдание.
Найди работу по душе и тебе не придется работать.
Кто хочет - ищет возможности, кто не хочет - ищет оправдание.
Найди работу по душе и тебе не придется работать.
- voverrr
- Мастер
- Сообщения: 242
- Зарегистрирован: 07 июн 2019, 01:22
- Репутация: 4
- Настоящее имя: Vladimir Mironov
- Откуда: Moscow
- Контактная информация:
Re: Токарно-фрезерный по дереву 1000х300х300
Оно всё стоит не сильно дорого, если по одной штучке находить. А как начнёшь набор собирать - одно, другое, пятое, десятое, так набегает на десяток тысяч.hmnijp писал(а):китайские дешевые швп, стоят не многим больше чем трапециевидные винты.
Что ШВП, что трапециевидный - их же по концам всё равно нужно токарить под метрическую резьбу. Хотя бы эти концы понять откуда начинать и где заканчивать.
Шаги ардуины научиться считать.
Вряд ли у кого-нибудь получалось всё на практике один-в-один как в расчётах. Так лучше отлаживать на шпильке за 180 рублей, чем на винте за 1900+
- Mamont
- Мастер
- Сообщения: 2005
- Зарегистрирован: 10 дек 2015, 12:21
- Репутация: 391
- Настоящее имя: Виталий
- Откуда: РБ Минск
- Контактная информация:
Re: Токарно-фрезерный по дереву 1000х300х300
Сначала сделать, потом сразу переделывать.. Экономия на лицоvoverrr писал(а):ах. Так лучше отлаживать на шпильке за 180 рублей, чем на винте за 1900+
- uralpt
- Мастер
- Сообщения: 651
- Зарегистрирован: 23 ноя 2015, 14:31
- Репутация: 104
- Настоящее имя: евгений
- Откуда: Миасс
- Контактная информация:
Re: Токарно-фрезерный по дереву 1000х300х300
1. только полнотелая заготовка получится >40 кг.
Болтаться она будет на ал.профиле 40*40. Не смущает?
Возьмите мешок цемента и положите его на профиль l=500 по центру. Все сами увидите, не нужно никаких расчетов. Вангую, что при такой схеме каретки просто заклинит и голова никуда не поедет.
2. Редуктор. В вашем случае, чтобы ворочать такую массу, нужен редуктор с i>100. Еще и точный. Иначе даже китайский редуктор с погрешностью 15 секунд покажет "убегание" точки на поверхности при R=150 на 0,65мм. Только сначала эта точка "убежит" из-за центра масс в одну сторону, а потом - в другую. Да и где такой редуктор купить, я что-то не знаю. Самому сделать?
Болтаться она будет на ал.профиле 40*40. Не смущает?
Возьмите мешок цемента и положите его на профиль l=500 по центру. Все сами увидите, не нужно никаких расчетов. Вангую, что при такой схеме каретки просто заклинит и голова никуда не поедет.
2. Редуктор. В вашем случае, чтобы ворочать такую массу, нужен редуктор с i>100. Еще и точный. Иначе даже китайский редуктор с погрешностью 15 секунд покажет "убегание" точки на поверхности при R=150 на 0,65мм. Только сначала эта точка "убежит" из-за центра масс в одну сторону, а потом - в другую. Да и где такой редуктор купить, я что-то не знаю. Самому сделать?
- hmnijp
- Мастер
- Сообщения: 1754
- Зарегистрирован: 20 авг 2017, 15:02
- Репутация: 542
- Настоящее имя: Константин
- Откуда: Ульяновск
- Контактная информация:
Re: Токарно-фрезерный по дереву 1000х300х300
китайцы швп продают с уже обработанными концами под стандартные подшипниковые опоры BK/Bf. и стоит дешманский транспортный метровый винт 1605 с гайкой у них как раз чуть больше 2к с доставкой с местного склада. комплект вместе с крашенными металлическими опорами, силуминовым креплением гайки и муфтой стоит 3к. а если смотреть дичь всякую, вроде метровых 1204 то и дешевле 2к с доставкой
Последний раз редактировалось hmnijp 02 янв 2020, 16:29, всего редактировалось 1 раз.
- voverrr
- Мастер
- Сообщения: 242
- Зарегистрирован: 07 июн 2019, 01:22
- Репутация: 4
- Настоящее имя: Vladimir Mironov
- Откуда: Moscow
- Контактная информация:
Re: Токарно-фрезерный по дереву 1000х300х300
Было бы всё понятно, тогда ни чертежей не надо было ни расчётов.
Пили прям так и собирай.
Пили прям так и собирай.
- voverrr
- Мастер
- Сообщения: 242
- Зарегистрирован: 07 июн 2019, 01:22
- Репутация: 4
- Настоящее имя: Vladimir Mironov
- Откуда: Moscow
- Контактная информация:
Re: Токарно-фрезерный по дереву 1000х300х300
Заготовка же не на поперёк профиля по центру давит, а закреплена в оси. Давит по концам, а там двойным профилем усилено, где держатель подшипника.Да и мешок цемента - это понятие такое... относительное. Достаточно ли вон там 32-килограммового мешка?uralpt писал(а):1. только полнотелая заготовка получится >40 кг.
Болтаться она будет на ал.профиле 40*40. Не смущает?
Возьмите мешок цемента и положите его на профиль l=500 по центру. Все сами увидите, не нужно никаких расчетов. Вангую, что при такой схеме каретки просто заклинит и голова никуда не поедет.
2. Редуктор. В вашем случае, чтобы ворочать такую массу, нужен редуктор с i>100. Еще и точный. Иначе даже китайский редуктор с погрешностью 15 секунд покажет "убегание" точки на поверхности при R=150 на 0,65мм. Только сначала эта точка "убежит" из-за центра масс в одну сторону, а потом - в другую. Да и где такой редуктор купить, я что-то не знаю. Самому сделать?
Как её закрепить - я прикидываю, что токарный патрон d120-130 или что-то типа него. У него ось d30, соответственно и подшипники и остальной узел крепления мощнее.
А какую массу ворочать? Он же не волоком её елозит, а трением качения шариков в подшипниках.
Редуктор - да, нужен с большим передаточным числом. Я ещё не знаю, как выглядит зависимость перемещения фрезы около оси бревна и на периферии бревна. Ведь при одном шаге двигателя получается разное линейное перемещение точек, расположенных ближе и дальше от центра.
Для редуктора предполагаю использовать вот такие зубчатые колёса.